D-residence稲城 稲城長沼の1LDK賃貸マンション|ピタットハウス武蔵境店

武蔵野市・三鷹市・杉並区の不動産なら東洋リーベスト(ピタットハウス武蔵境・ピタットハウス阿佐ヶ谷店)
TOPページ
賃貸物件検索
稲城市の賃貸情報一覧
D-residence稲城 稲城長沼の1LDK賃貸マンション

D-residence稲城 稲城長沼の1LDK賃貸マンション

  • 16.7万円
    10,000円
  • 敷金
    0ヶ月
    礼金
    1ヶ月
    保証金
    0ヶ月
    敷引・償却
    0ヶ月-
  • 間取り
    1LDK
    専有面積
    53.14m2
    築年月
    新築 
    所在階・階数
    1階・4階
  • 所在地
    東京都稲城市東長沼  周辺MAP
  • 交通
    JR南武線 「稲城長沼駅」 徒歩1分
    京王相模原線 「稲城駅」 徒歩18分
【建物外観】 外観 【間取】  【建物外観】 その他 【その他】 キッチン 【その他】 バス/シャワー 【その他】 その他部屋・スペース 【その他】 その他部屋・スペース 【その他】 その他部屋・スペース 【その他】 その他部屋・スペース 【その他】 洗面 【その他】 トイレ 【その他】 収納 【その他】 玄関 【その他】 玄関 【その他】 バルコニー 【その他】 セキュリティ 【その他】 設備 【その他】 設備
【建物外観】 外観
【間取】 
【建物外観】 その他
【その他】 キッチン
【その他】 バス/シャワー
【その他】 その他部屋・スペース
【その他】 その他部屋・スペース
【その他】 その他部屋・スペース
【その他】 その他部屋・スペース
【その他】 洗面
【その他】 トイレ
【その他】 収納
【その他】 玄関
【その他】 玄関
【その他】 バルコニー
【その他】 セキュリティ
【その他】 設備
【その他】 設備
  • 【建物外観】 外観
  • 【間取】 
  • 【建物外観】 その他
  • 【その他】 キッチン
  • 【その他】 バス/シャワー
  • 【その他】 その他部屋・スペース
  • 【その他】 その他部屋・スペース
  • 【その他】 その他部屋・スペース
  • 【その他】 その他部屋・スペース
  • 【その他】 洗面
  • 【その他】 トイレ
  • 【その他】 収納
  • 【その他】 玄関
  • 【その他】 玄関
  • 【その他】 バルコニー
  • 【その他】 セキュリティ
  • 【その他】 設備
  • 【その他】 設備

【スタッフからのイチオシポイント!】D-residence稲城

インターネット無料。小型犬または猫1匹まで飼育可能(飼育される場合敷金1か月)オートロック、エレベーター設置あります。共用部オートロック、専有部鍵で顔認証システムを導入しております。
東京都稲城市東長沼【JR南武線 稲城長沼駅徒歩1分】にある1LDK賃貸マンションです。
新築築の4階建てのマンションで、お部屋は4階建ての1階部分です。
物件の広さは53.14m2で人気の1LDKです。
※お部屋のもっと詳しい内容や入居時期、諸条件のご相談など、ホームページには掲載が間に合わず載せきれていない情報もございます。
気になることが御座いましたらお気軽にメールにてお問い合わせください。
0120-72-3966
ピタットハウス武蔵境店
お問い合わせNO:RHS-GC47124984

物件基本情報

所在地 東京都稲城市東長沼   周辺MAP
交通 JR南武線 「稲城長沼駅」 徒歩1分
京王相模原線 「稲城駅」 徒歩18分
種別 / 構造 マンション / S造(鉄骨造) 主要採光面 - 所在階 / 階数 1階 / 4階
築年月 新築  間取り 1LDK( - ) 専有面積 53.14m2

物件詳細情報

損保 更新料 あり 16.7万円 鍵交換代 -
駐車場 なし 近隣駐車場   契約期間
借家区分
2年 -
現況 入居可能日 即入居可 取引態様 媒介
保証会社 仲介手数料 18.37万円 バイク置き場
その他費用
  • ルームクリーニング料金:77000円 D-roomCardキー料金:16500円 ICロック電池(初回):2750円

設備詳細情報

キッチン
  • システムキッチン
  • 対面式キッチン
バス・トイレ
  • バストイレ別
  • シャワー
  • 追焚機能浴室
  • 浴室乾燥機
  • 温水洗浄便座
  • 室内洗濯機置き場
住空間
  • バルコニー
  • フローリング
  • エアコン
設備・サービス
  • シューズボックス
  • TVインターホン
  • オートロック
  • エレベーター
  • 宅配ボックス
  • BS
  • 24時間緊急通報システム
  • LAN
特 徴
条件・その他  ガス:都市 / ペット:可能
コメント インターネット無料。小型犬または猫1匹まで飼育可能(飼育される場合敷金1か月)オートロック、エレベーター設置あります。共用部オートロック、専有部鍵で顔認証システムを導入しております。
備 考 機関保証加入必須。初回保証料35000円、月額保証料賃料等総額の1%+800円/月(その他商品あり) ルームクリーニング料金にエアコンクリーニング費用を含みます。

学区情報

小学校区
()
中学校区
()
情報更新日:2026年05月11日 次回更新予定日:2026年05月25日
※各種情報と差異がある場合は現況優先となります
※物件情報の学区情報について
当サイト物件情報に記載されております通学区域(学区)情報は、国土数値情報ダウンロードサービスが提供する小学校区データ【2021年度】及び中学校区データ【2021年度】を元に加工したものですので、記載情報が現在の学区域と異なる場合がございます。国土数値情報ダウンロードサービスのWEBサイト上で記述通り、データは必ずしも正確とは言えません。また、通学区域(学区)は毎年見直しの対象となりますので、そちらを踏まえ学区情報は参考としてご活用下さい。

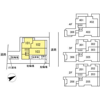
こちらの物件の空室状況

間取図 部屋番号 賃料
共益費/管理費
敷金
礼金
間取り
専有面積
お気に入り 物件詳細
この賃貸物件の空室101の間取り画像
101
ピタットハウス武蔵境店 15.9万円
10,000円 -
0ヶ月
1ヶ月
1LDK
50.73m2
お気に入り 詳細を見る
この賃貸物件の空室102の間取り画像
102
ピタットハウス武蔵境店 17.9万円
10,000円 -
0ヶ月
1ヶ月
1LDK
56.93m2
お気に入り 詳細を見る
この賃貸物件の空室103の間取り画像
103
ピタットハウス武蔵境店 16.7万円
10,000円 -
0ヶ月
1ヶ月
1LDK
53.14m2
お気に入り 詳細を見る
この賃貸物件の空室201の間取り画像
201
ピタットハウス武蔵境店 16.4万円
10,000円 -
0ヶ月
1ヶ月
1LDK
52.38m2
お気に入り 詳細を見る
この賃貸物件の空室202の間取り画像
202
ピタットハウス武蔵境店 15.9万円
10,000円 -
0ヶ月
1ヶ月
1LDK
50.66m2
お気に入り 詳細を見る
この賃貸物件の空室205の間取り画像
205
ピタットハウス武蔵境店 26.8万円
10,000円 -
0ヶ月
1ヶ月
3LDK
83.54m2
お気に入り 詳細を見る
この賃貸物件の空室206の間取り画像
206
ピタットハウス武蔵境店 19.6万円
10,000円 -
0ヶ月
1ヶ月
1LDK
60.78m2
お気に入り 詳細を見る
この賃貸物件の空室301の間取り画像
301
ピタットハウス武蔵境店 16.4万円
10,000円 -
0ヶ月
1ヶ月
1LDK
52.38m2
お気に入り 詳細を見る
この賃貸物件の空室302の間取り画像
302
ピタットハウス武蔵境店 15.9万円
10,000円 -
0ヶ月
1ヶ月
1LDK
50.66m2
お気に入り 詳細を見る
この賃貸物件の空室305の間取り画像
305
ピタットハウス武蔵境店 26.9万円
10,000円 -
0ヶ月
1ヶ月
3LDK
83.63m2
お気に入り 詳細を見る
この賃貸物件の空室403の間取り画像
403
ピタットハウス武蔵境店 25.9万円
10,000円 -
0ヶ月
1ヶ月
3LDK
78.66m2
お気に入り 詳細を見る
0120-72-3966
ピタットハウス武蔵境店
お問い合わせNO:RHS-GC47124984

この物件に似た物件をチェック!


閲覧した物件の履歴

閲覧した物件の一覧を見る

最近検索した条件一覧



気になったら今すぐ!カンタンお問合せ



お問合せ内容必須
【備考欄】
希望条件・来店希望日・その他質問がございましたらご記入ください。
お客様情報
お名前必須
メールアドレス必須
電話番号



※ご入力いただいたお客さまの個人情報は、「個人情報の取扱いについて」に基づき適正に取り扱います。必ずお読みになり、同意の上お問い合わせください。




※ご記入いただいたメールアドレス宛てに、お問合せ内容の確認メールをお送りいたします。
※Yahoo!メールなどのフリーメールをご利用の場合、迷惑メールフォルダに入る場合があります。
 迷惑メールのフォルダ・設定等をご確認下さい。
 


▲ページのTOPへ戻る


お問合せはこちら

ピタットハウス武蔵境店 0120-72-3966

新しい時代
賃貸管理で
理想の入居率を実現!

問い合わせアイコン問い合わせ

会社情報

東洋リーベスト本店
東洋リーベスト本店(管理部)
0422-30-8810
  • 営業時間

    10:00〜17:30

  • 定休日

    火曜日・水曜日

アクセス
東洋リーベスト本店
ピタットハウス武蔵境店
0120-72-3966
  • 営業時間

    10:00〜19:00

  • 定休日

    毎週火曜日 隔週水曜日
    冬期(1月〜3月は無休)

アクセス
東洋リーベスト阿佐ヶ谷店
東洋リーベスト阿佐ヶ谷店
0120-30-2285
  • 営業時間

    10:00〜19:00

  • 定休日

    火曜日 水曜日
    冬期(1月〜3月は無休)

アクセス