パークアクシス品川天王洲アイル 品川シーサイドの2LDK賃貸マンション|ピタットハウス武蔵境店

武蔵野市・三鷹市・杉並区の不動産なら東洋リーベスト(ピタットハウス武蔵境・ピタットハウス阿佐ヶ谷店)
TOPページ
賃貸物件検索
品川区の賃貸情報一覧
パークアクシス品川天王洲アイル 品川シーサイドの2LDK賃貸マンション

パークアクシス品川天王洲アイル 品川シーサイドの2LDK賃貸マンション

  • 30万円
    20,000円
  • 敷金
    1ヶ月
    礼金
    0ヶ月
    保証金
    0ヶ月
    敷引・償却
    0ヶ月-
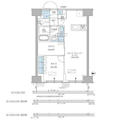
  • 間取り
    2LDK
    専有面積
    58.24m2
    築年月
    2025年 
    所在階・階数
    11階・14階
  • 所在地
    東京都品川区東品川3丁目  周辺MAP
  • 交通
    東京臨海高速りんかい線 「品川シーサイド駅」 徒歩7分
    東京モノレール 「天王洲アイル駅」 徒歩10分
    東京臨海高速りんかい線 「天王洲アイル駅」 徒歩7分
【建物外観】 外観 【間取】  【建物外観】 外観 【建物外観】 地形図・案内図 【建物外観】 エントランス 【建物外観】 共有部分
【建物外観】 外観
【間取】 
【建物外観】 外観
【建物外観】 地形図・案内図
【建物外観】 エントランス
【建物外観】 共有部分
  • 【建物外観】 外観
  • 【間取】 
  • 【建物外観】 外観
  • 【建物外観】 地形図・案内図
  • 【建物外観】 エントランス
  • 【建物外観】 共有部分

【スタッフからのイチオシポイント!】パークアクシス品川天王洲アイル

東京都品川区東品川3丁目【東京臨海高速りんかい線 品川シーサイド駅徒歩7分】にある2LDK賃貸マンションです。
2025年築の14階建てのマンションで、お部屋は14階建ての11階部分です。
物件の広さは58.24m2で人気の2LDKです。
※お部屋のもっと詳しい内容や入居時期、諸条件のご相談など、ホームページには掲載が間に合わず載せきれていない情報もございます。
気になることが御座いましたらお気軽にメールにてお問い合わせください。
0120-72-3966
ピタットハウス武蔵境店
お問い合わせNO:RHS-GC4540322216

物件基本情報

所在地 東京都品川区東品川3丁目   周辺MAP
交通 東京臨海高速りんかい線 「品川シーサイド駅」 徒歩7分
東京モノレール 「天王洲アイル駅」 徒歩10分
東京臨海高速りんかい線 「天王洲アイル駅」 徒歩7分
種別 / 構造 マンション / RC造(鉄筋コンクリート造) 主要採光面 所在階 / 階数 11階 / 14階
築年月 2025年  間取り 2LDK( - ) 専有面積 58.24m2

物件詳細情報

損保 更新料 なし 鍵交換代 -
駐車場 なし 近隣駐車場   契約期間
借家区分
2年 定期借家
現況 入居可能日 即入居可 取引態様 媒介
保証会社 その他 初回保証委託料(最低20,000円):月額賃料等の50%、 2年目以降:9,600円/年 仲介手数料 33万円 バイク置き場
その他費用
  • 室内清掃費:108908円 鍵交換費:33000円 口座振替事務手数料:220円/月

設備詳細情報

キッチン
  • システムキッチン
バス・トイレ
  • バストイレ別
  • 追焚機能浴室
  • 浴室乾燥機
  • 洗面所独立
  • 室内洗濯機置き場
住空間
  • バルコニー
  • フローリング
  • エアコン
設備・サービス
  • オートロック
  • エレベーター
  • 宅配ボックス
  • CS
  • BS
  • CATV
特 徴
条件・その他  ペット:可能 / フリーレント:1ヶ月あり
コメント
備 考 -

学区情報

小学校区
()
中学校区
()
情報更新日:2026年03月09日 次回更新予定日:2026年03月23日
※各種情報と差異がある場合は現況優先となります
※物件情報の学区情報について
当サイト物件情報に記載されております通学区域(学区)情報は、国土数値情報ダウンロードサービスが提供する小学校区データ【2021年度】及び中学校区データ【2021年度】を元に加工したものですので、記載情報が現在の学区域と異なる場合がございます。国土数値情報ダウンロードサービスのWEBサイト上で記述通り、データは必ずしも正確とは言えません。また、通学区域(学区)は毎年見直しの対象となりますので、そちらを踏まえ学区情報は参考としてご活用下さい。

こちらの物件の空室状況

間取図 部屋番号 賃料
共益費/管理費
敷金
礼金
間取り
専有面積
お気に入り 物件詳細
この賃貸物件の空室1002の間取り画像
1002
ピタットハウス武蔵境店 25.2万円
20,000円 -
1ヶ月
0ヶ月
2LDK
50.4m2
お気に入り 詳細を見る
この賃貸物件の空室1002の間取り画像
1002
ピタットハウス阿佐ヶ谷店 25.2万円
20,000円 -
1ヶ月
0ヶ月
2LDK
50.4m2
お気に入り 詳細を見る
この賃貸物件の空室1003の間取り画像
1003
ピタットハウス武蔵境店 25.2万円
20,000円 -
1ヶ月
0ヶ月
2LDK
50.4m2
お気に入り 詳細を見る
この賃貸物件の空室1003の間取り画像
1003
ピタットハウス阿佐ヶ谷店 25.2万円
20,000円 -
1ヶ月
0ヶ月
2LDK
50.4m2
お気に入り 詳細を見る
この賃貸物件の空室1007の間取り画像
1007
ピタットハウス武蔵境店 22.6万円
20,000円 -
1ヶ月
0ヶ月
2LDK
45.57m2
お気に入り 詳細を見る
この賃貸物件の空室1007の間取り画像
1007
ピタットハウス阿佐ヶ谷店 22.6万円
20,000円 -
1ヶ月
0ヶ月
2LDK
45.57m2
お気に入り 詳細を見る
この賃貸物件の空室1010の間取り画像
1010
ピタットハウス武蔵境店 22.1万円
15,000円 -
1ヶ月
0ヶ月
2DK
45.57m2
お気に入り 詳細を見る
この賃貸物件の空室1010の間取り画像
1010
ピタットハウス阿佐ヶ谷店 22.1万円
15,000円 -
1ヶ月
0ヶ月
2DK
45.57m2
お気に入り 詳細を見る
この賃貸物件の空室1012の間取り画像
1012
ピタットハウス武蔵境店 22.9万円
20,000円 -
1ヶ月
0ヶ月
2LDK
45.57m2
お気に入り 詳細を見る
この賃貸物件の空室1012の間取り画像
1012
ピタットハウス阿佐ヶ谷店 22.9万円
20,000円 -
1ヶ月
0ヶ月
2LDK
45.57m2
お気に入り 詳細を見る
この賃貸物件の空室1013の間取り画像
1013
ピタットハウス武蔵境店 22.1万円
15,000円 -
1ヶ月
0ヶ月
2DK
45.57m2
お気に入り 詳細を見る
この賃貸物件の空室1013の間取り画像
1013
ピタットハウス阿佐ヶ谷店 22.1万円
15,000円 -
1ヶ月
0ヶ月
2DK
45.57m2
お気に入り 詳細を見る
この賃貸物件の空室1101の間取り画像
1101
ピタットハウス武蔵境店 25.9万円
20,000円 -
1ヶ月
0ヶ月
2LDK
50.4m2
お気に入り 詳細を見る
この賃貸物件の空室1114の間取り画像
1114
ピタットハウス武蔵境店 30万円
20,000円 -
1ヶ月
0ヶ月
2LDK
58.24m2
お気に入り 詳細を見る
この賃貸物件の空室1202の間取り画像
1202
ピタットハウス武蔵境店 21.1万円
12,000円 -
1ヶ月
0ヶ月
1LDK
38.4m2
お気に入り 詳細を見る
この賃貸物件の空室1204の間取り画像
1204
ピタットハウス武蔵境店 22.8万円
20,000円 -
1ヶ月
0ヶ月
2LDK
45.57m2
お気に入り 詳細を見る
この賃貸物件の空室1208の間取り画像
1208
ピタットハウス武蔵境店 22.8万円
20,000円 -
1ヶ月
0ヶ月
2LDK
45.57m2
お気に入り 詳細を見る
この賃貸物件の空室1209の間取り画像
1209
ピタットハウス武蔵境店 23.1万円
20,000円 -
1ヶ月
0ヶ月
2LDK
45.57m2
お気に入り 詳細を見る
この賃貸物件の空室1210の間取り画像
1210
ピタットハウス武蔵境店 22.7万円
15,000円 -
1ヶ月
0ヶ月
2DK
45.57m2
お気に入り 詳細を見る
この賃貸物件の空室1211の間取り画像
1211
ピタットハウス武蔵境店 33.5万円
20,000円 -
1ヶ月
0ヶ月
3LDK
62.65m2
お気に入り 詳細を見る
この賃貸物件の空室1404の間取り画像
1404
ピタットハウス武蔵境店 22.4万円
20,000円 -
1ヶ月
0ヶ月
2LDK
45.57m2
お気に入り 詳細を見る
この賃貸物件の空室205の間取り画像
205
ピタットハウス武蔵境店 19.7万円
12,000円 -
1ヶ月
0ヶ月
1LDK
38.4m2
お気に入り 詳細を見る
この賃貸物件の空室206の間取り画像
206
ピタットハウス武蔵境店 16.9万円
12,000円 -
1ヶ月
0ヶ月
1LDK
34.72m2
お気に入り 詳細を見る
この賃貸物件の空室207の間取り画像
207
ピタットハウス武蔵境店 21.6万円
20,000円 -
1ヶ月
0ヶ月
2LDK
45.57m2
お気に入り 詳細を見る
この賃貸物件の空室208の間取り画像
208
ピタットハウス武蔵境店 21.8万円
20,000円 -
1ヶ月
0ヶ月
2LDK
45.57m2
お気に入り 詳細を見る
この賃貸物件の空室209の間取り画像
209
ピタットハウス武蔵境店 27.6万円
20,000円 -
1ヶ月
0ヶ月
2LDK
60.53m2
お気に入り 詳細を見る
この賃貸物件の空室210の間取り画像
210
ピタットハウス武蔵境店 21.3万円
15,000円 -
1ヶ月
0ヶ月
2DK
45.57m2
お気に入り 詳細を見る
この賃貸物件の空室211の間取り画像
211
ピタットハウス武蔵境店 21.6万円
20,000円 -
1ヶ月
0ヶ月
2LDK
45.57m2
お気に入り 詳細を見る
この賃貸物件の空室213の間取り画像
213
ピタットハウス武蔵境店 21.3万円
15,000円 -
1ヶ月
0ヶ月
2DK
45.57m2
お気に入り 詳細を見る
この賃貸物件の空室220の間取り画像
220
ピタットハウス武蔵境店 15.1万円
12,000円 -
1ヶ月
0ヶ月
1LDK
29.12m2
お気に入り 詳細を見る
この賃貸物件の空室226の間取り画像
226
ピタットハウス武蔵境店 15.1万円
12,000円 -
1ヶ月
0ヶ月
1DK
29.12m2
お気に入り 詳細を見る
この賃貸物件の空室227の間取り画像
227
ピタットハウス武蔵境店 15.1万円
12,000円 -
1ヶ月
0ヶ月
1DK
29.12m2
お気に入り 詳細を見る
この賃貸物件の空室228の間取り画像
228
ピタットハウス武蔵境店 15.1万円
12,000円 -
1ヶ月
0ヶ月
1DK
29.12m2
お気に入り 詳細を見る
この賃貸物件の空室229の間取り画像
229
ピタットハウス武蔵境店 15.1万円
12,000円 -
1ヶ月
0ヶ月
1DK
29.12m2
お気に入り 詳細を見る
この賃貸物件の空室230の間取り画像
230
ピタットハウス武蔵境店 15.4万円
12,000円 -
1ヶ月
0ヶ月
1DK
30.94m2
お気に入り 詳細を見る
この賃貸物件の空室303の間取り画像
303
ピタットハウス武蔵境店 23.2万円
20,000円 -
1ヶ月
0ヶ月
2LDK
50.4m2
お気に入り 詳細を見る
この賃貸物件の空室303の間取り画像
303
ピタットハウス阿佐ヶ谷店 23.2万円
20,000円 -
1ヶ月
0ヶ月
2LDK
50.4m2
お気に入り 詳細を見る
この賃貸物件の空室407の間取り画像
407
ピタットハウス武蔵境店 21.8万円
20,000円 -
1ヶ月
0ヶ月
2LDK
45.57m2
お気に入り 詳細を見る
この賃貸物件の空室410の間取り画像
410
ピタットハウス武蔵境店 21.5万円
15,000円 -
1ヶ月
0ヶ月
2DK
45.57m2
お気に入り 詳細を見る
この賃貸物件の空室411の間取り画像
411
ピタットハウス武蔵境店 21.8万円
20,000円 -
1ヶ月
0ヶ月
2LDK
45.57m2
お気に入り 詳細を見る
この賃貸物件の空室412の間取り画像
412
ピタットハウス武蔵境店 22万円
20,000円 -
1ヶ月
0ヶ月
2LDK
45.57m2
お気に入り 詳細を見る
この賃貸物件の空室414の間取り画像
414
ピタットハウス武蔵境店 15.5万円
12,000円 -
1ヶ月
0ヶ月
1DK
29.38m2
お気に入り 詳細を見る
この賃貸物件の空室417の間取り画像
417
ピタットハウス武蔵境店 15.3万円
12,000円 -
1ヶ月
0ヶ月
1DK
29.12m2
お気に入り 詳細を見る
この賃貸物件の空室423の間取り画像
423
ピタットハウス武蔵境店 15.3万円
12,000円 -
1ヶ月
0ヶ月
1DK
29.12m2
お気に入り 詳細を見る
この賃貸物件の空室502の間取り画像
502
ピタットハウス武蔵境店 23.9万円
20,000円 -
1ヶ月
0ヶ月
2LDK
50.4m2
お気に入り 詳細を見る
この賃貸物件の空室503の間取り画像
503
ピタットハウス武蔵境店 23.6万円
20,000円 -
1ヶ月
0ヶ月
2LDK
50.4m2
お気に入り 詳細を見る
この賃貸物件の空室504の間取り画像
504
ピタットハウス武蔵境店 23.6万円
20,000円 -
1ヶ月
0ヶ月
2LDK
50.4m2
お気に入り 詳細を見る
この賃貸物件の空室505の間取り画像
505
ピタットハウス武蔵境店 20万円
12,000円 -
1ヶ月
0ヶ月
1LDK
38.4m2
お気に入り 詳細を見る
この賃貸物件の空室513の間取り画像
513
ピタットハウス武蔵境店 21.6万円
15,000円 -
1ヶ月
0ヶ月
2DK
45.57m2
お気に入り 詳細を見る
この賃貸物件の空室530の間取り画像
530
ピタットハウス阿佐ヶ谷店 15.7万円
12,000円 -
1ヶ月
0ヶ月
1DK
30.94m2
お気に入り 詳細を見る
この賃貸物件の空室530の間取り画像
530
ピタットハウス武蔵境店 15.7万円
12,000円 -
1ヶ月
0ヶ月
1DK
30.94m2
お気に入り 詳細を見る
この賃貸物件の空室603の間取り画像
603
ピタットハウス武蔵境店 24.1万円
20,000円 -
1ヶ月
0ヶ月
2LDK
50.4m2
お気に入り 詳細を見る
この賃貸物件の空室603の間取り画像
603
ピタットハウス阿佐ヶ谷店 24.1万円
20,000円 -
1ヶ月
0ヶ月
2LDK
50.4m2
お気に入り 詳細を見る
この賃貸物件の空室607の間取り画像
607
ピタットハウス武蔵境店 22.3万円
20,000円 -
1ヶ月
0ヶ月
2LDK
45.57m2
お気に入り 詳細を見る
この賃貸物件の空室607の間取り画像
607
ピタットハウス阿佐ヶ谷店 22.3万円
20,000円 -
1ヶ月
0ヶ月
2LDK
45.57m2
お気に入り 詳細を見る
この賃貸物件の空室608の間取り画像
608
ピタットハウス武蔵境店 22.5万円
20,000円 -
1ヶ月
0ヶ月
2LDK
45.57m2
お気に入り 詳細を見る
この賃貸物件の空室608の間取り画像
608
ピタットハウス阿佐ヶ谷店 22.5万円
20,000円 -
1ヶ月
0ヶ月
2LDK
45.57m2
お気に入り 詳細を見る
この賃貸物件の空室609の間取り画像
609
ピタットハウス武蔵境店 28万円
20,000円 -
1ヶ月
0ヶ月
2LDK
60.53m2
お気に入り 詳細を見る
この賃貸物件の空室609の間取り画像
609
ピタットハウス阿佐ヶ谷店 28万円
20,000円 -
1ヶ月
0ヶ月
2LDK
60.53m2
お気に入り 詳細を見る
この賃貸物件の空室610の間取り画像
610
ピタットハウス武蔵境店 21.7万円
15,000円 -
1ヶ月
0ヶ月
2DK
45.57m2
お気に入り 詳細を見る
この賃貸物件の空室610の間取り画像
610
ピタットハウス阿佐ヶ谷店 21.7万円
15,000円 -
1ヶ月
0ヶ月
2DK
45.57m2
お気に入り 詳細を見る
この賃貸物件の空室612の間取り画像
612
ピタットハウス武蔵境店 22.5万円
20,000円 -
1ヶ月
0ヶ月
2LDK
45.57m2
お気に入り 詳細を見る
この賃貸物件の空室612の間取り画像
612
ピタットハウス阿佐ヶ谷店 22.5万円
20,000円 -
1ヶ月
0ヶ月
2LDK
45.57m2
お気に入り 詳細を見る
この賃貸物件の空室613の間取り画像
613
ピタットハウス武蔵境店 21.7万円
15,000円 -
1ヶ月
0ヶ月
2DK
45.57m2
お気に入り 詳細を見る
この賃貸物件の空室613の間取り画像
613
ピタットハウス阿佐ヶ谷店 21.7万円
15,000円 -
1ヶ月
0ヶ月
2DK
45.57m2
お気に入り 詳細を見る
この賃貸物件の空室615の間取り画像
615
ピタットハウス武蔵境店 15.7万円
12,000円 -
1ヶ月
0ヶ月
1DK
29.35m2
お気に入り 詳細を見る
この賃貸物件の空室617の間取り画像
617
ピタットハウス武蔵境店 15.7万円
12,000円 -
1ヶ月
0ヶ月
1DK
29.12m2
お気に入り 詳細を見る
この賃貸物件の空室620の間取り画像
620
ピタットハウス武蔵境店 15.6万円
12,000円 -
1ヶ月
0ヶ月
1LDK
29.12m2
お気に入り 詳細を見る
この賃貸物件の空室719の間取り画像
719
ピタットハウス武蔵境店 28.2万円
20,000円 -
1ヶ月
0ヶ月
2LDK
58.24m2
お気に入り 詳細を見る
この賃貸物件の空室720の間取り画像
720
ピタットハウス武蔵境店 28.7万円
20,000円 -
1ヶ月
0ヶ月
2LDK
58.24m2
お気に入り 詳細を見る
この賃貸物件の空室801の間取り画像
801
ピタットハウス武蔵境店 30.5万円
20,000円 -
1ヶ月
0ヶ月
2LDK
62m2
お気に入り 詳細を見る
この賃貸物件の空室803の間取り画像
803
ピタットハウス武蔵境店 24.8万円
20,000円 -
1ヶ月
0ヶ月
2LDK
50.4m2
お気に入り 詳細を見る
この賃貸物件の空室804の間取り画像
804
ピタットハウス武蔵境店 24.5万円
20,000円 -
1ヶ月
0ヶ月
2LDK
50.4m2
お気に入り 詳細を見る
この賃貸物件の空室808の間取り画像
808
ピタットハウス武蔵境店 22.7万円
20,000円 -
1ヶ月
0ヶ月
2LDK
45.57m2
お気に入り 詳細を見る
この賃貸物件の空室809の間取り画像
809
ピタットハウス武蔵境店 28.4万円
20,000円 -
1ヶ月
0ヶ月
2LDK
60.53m2
お気に入り 詳細を見る
この賃貸物件の空室814の間取り画像
814
ピタットハウス武蔵境店 32万円
20,000円 -
1ヶ月
0ヶ月
3LDK
62.65m2
お気に入り 詳細を見る
この賃貸物件の空室815の間取り画像
815
ピタットハウス武蔵境店 28.9万円
20,000円 -
1ヶ月
0ヶ月
2LDK
58.24m2
お気に入り 詳細を見る
この賃貸物件の空室819の間取り画像
819
ピタットハウス武蔵境店 16.2万円
12,000円 -
1ヶ月
0ヶ月
1DK
30.94m2
お気に入り 詳細を見る
この賃貸物件の空室906の間取り画像
906
ピタットハウス武蔵境店 17.8万円
12,000円 -
1ヶ月
0ヶ月
1LDK
34.72m2
お気に入り 詳細を見る
この賃貸物件の空室914の間取り画像
914
ピタットハウス武蔵境店 32.8万円
20,000円 -
1ヶ月
0ヶ月
3LDK
62.65m2
お気に入り 詳細を見る
0120-72-3966
ピタットハウス武蔵境店
お問い合わせNO:RHS-GC4540322216

この物件に似た物件をチェック!


閲覧した物件の履歴

閲覧した物件の一覧を見る

最近検索した条件一覧



気になったら今すぐ!カンタンお問合せ



お問合せ内容必須
【備考欄】
希望条件・来店希望日・その他質問がございましたらご記入ください。
お客様情報
お名前必須
メールアドレス必須
電話番号



※ご入力いただいたお客さまの個人情報は、「個人情報の取扱いについて」に基づき適正に取り扱います。必ずお読みになり、同意の上お問い合わせください。




※ご記入いただいたメールアドレス宛てに、お問合せ内容の確認メールをお送りいたします。
※Yahoo!メールなどのフリーメールをご利用の場合、迷惑メールフォルダに入る場合があります。
 迷惑メールのフォルダ・設定等をご確認下さい。
 


▲ページのTOPへ戻る


お問合せはこちら

ピタットハウス武蔵境店 0120-72-3966

新しい時代
賃貸管理で
理想の入居率を実現!

問い合わせアイコン問い合わせ

会社情報

東洋リーベスト本店
東洋リーベスト本店(管理部)
0422-30-8810
  • 営業時間

    10:00〜17:30

  • 定休日

    火曜日・水曜日

アクセス
東洋リーベスト本店
ピタットハウス武蔵境店
0120-72-3966
  • 営業時間

    10:00〜19:00

  • 定休日

    毎週火曜日 隔週水曜日
    冬期(1月〜3月は無休)

アクセス
東洋リーベスト阿佐ヶ谷店
東洋リーベスト阿佐ヶ谷店
0120-30-2285
  • 営業時間

    10:00〜19:00

  • 定休日

    火曜日 水曜日
    冬期(1月〜3月は無休)

アクセス