三鷹市上連雀9丁目新築戸建て 東京都三鷹市上連雀9丁目|6,980万円の新築一戸建て|株式会社東洋リーベスト
| 価格 | 6,980万円 ![]() |
||||
|---|---|---|---|---|---|
| 所在地 | 東京都三鷹市上連雀9丁目
この地域周辺の物件を見る |
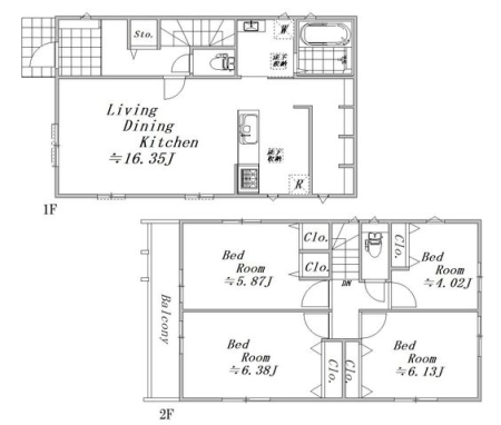
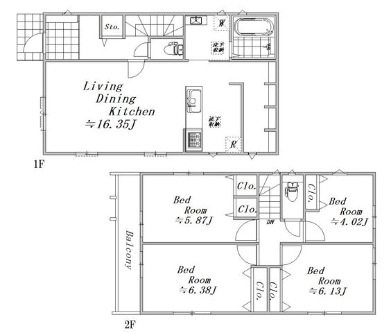
土地面積 | 119.14m² (36.03坪) | 建物面積 | 94.4u |
| 築年月 | 2025年12月築 | 間取り | 4LDK (-) | ||
| 交通 |
JR中央本線 三鷹 バス15分 山中 停歩7分
JR中央本線 武蔵境 バス14分 配水場前 停歩7分 |
||||
| 特徴 |
|
|---|---|
| セールスコメント | 〜〜〜スタッフの口コミ〜〜〜 広々としたパントリー付きの号棟や19帖以上のLDKなど 異なる4棟が完成しました♪ 全棟駐車スペースは2台分あり敷地もゆとりがございます♪ 前面道路は広く交通量も少ないので駐車も楽々です! 〜〜〜ここに注目!〜〜〜 ・リビング19帖以上(1号棟) ・1階リビングタイプ・2階リビングタイプ ・広々としたパントリー付き(2号棟・3号棟・4号棟) ・ワンフロアに水回り集約 ・大空間のウォークインクローゼット付き(4号棟) ・トイレ2ヶ所 ・各居室収納あり ・駐車スペース2台分 ・前面道路5m以上 ・閑静な住宅街 |
| 採光面 | - | 構造/階数 | 木造/地上2階建 |
|---|---|---|---|
| 建ぺい率 | 40(%) | 容積率 | 80(%) |
| 駐車場 | - | 現況/引渡し | 空家/相談 |
| 土地権利 | 所有権 | 私道負担面積 | - |
| 接道状況 | - | 用途地域 |
第一種低層住居専用地域
|
| セットバック | - | 法令上の制限 | - |
| 地目 | 宅地 | 地勢 | 0 |
| 建築確認番号 | 0 | 都市計画 | 市街化区域 |
| 取引態様 | 仲介 | ||
| 情報更新日 | 2026年04月19日 | 次回更新日 | 2026年05月03日 |
| 小学校区 | 三鷹市立第二小学校 (東京都三鷹市) この学区の他の物件を見る |
中学校区 | 第二中学校 (東京都三鷹市) この学区の他の物件を見る |
|---|
| 価格 | 万円 | ||
|---|---|---|---|
| 年利率 | % |
||
| ボーナス払い | 返済年数 | ||
| 頭金 | 直接入力する | 万円 | |

毎月のご返済額 |
ボーナス(×年2回) |
物件価格6,980万円 |
![]() |
![]() |
三鷹市上連雀9丁目
6980万円〜7380万円 |
広々としたパントリー付きの号棟や19帖以上のLDKなど 異なる4棟が完成しました♪ 全棟駐車スペースは2台分あり敷地もゆとりがございます♪ 前面道路は広く交通量も少ないので駐車も楽々です!