パークスフィア牛込神楽坂 牛込柳町の1LDK賃貸マンション|ピタットハウス武蔵境店

武蔵野市・三鷹市・杉並区の不動産なら東洋リーベスト(ピタットハウス武蔵境・ピタットハウス阿佐ヶ谷店)
TOPページ
賃貸物件検索
新宿区の賃貸情報一覧
パークスフィア牛込神楽坂 牛込柳町の1LDK賃貸マンション

パークスフィア牛込神楽坂 牛込柳町の1LDK賃貸マンション

  • 24.9万円
    15,000円
  • 敷金
    1ヶ月
    礼金
    1ヶ月
    保証金
    0ヶ月
    敷引・償却
    0ヶ月-
  • 間取り
    1LDK
    専有面積
    40.01m2
    築年月
    2021年7月 
    所在階・階数
    13階・13階
  • 所在地
    東京都新宿区南山伏町  周辺MAP
  • 交通
    都営大江戸線 「牛込柳町駅」 徒歩4分
    東京メトロ東西線 「神楽坂駅」 徒歩13分
    都営大江戸線 「牛込神楽坂駅」 徒歩7分
【建物外観】 外観 【間取】  【建物外観】 地形図・案内図 【建物外観】 エントランス 【建物外観】 共有部分 【建物外観】 その他
【建物外観】 外観
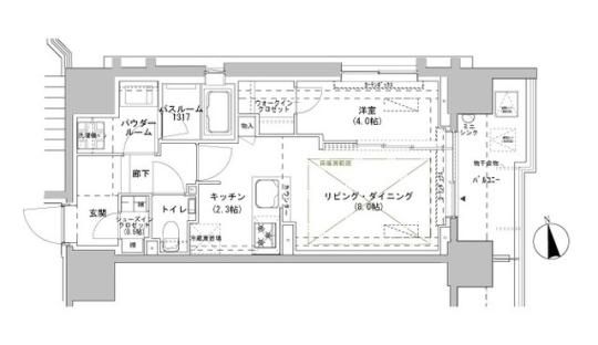
【間取】 
【建物外観】 地形図・案内図
【建物外観】 エントランス
【建物外観】 共有部分
【建物外観】 その他
  • 【建物外観】 外観
  • 【間取】 
  • 【建物外観】 地形図・案内図
  • 【建物外観】 エントランス
  • 【建物外観】 共有部分
  • 【建物外観】 その他

【スタッフからのイチオシポイント!】パークスフィア牛込神楽坂

東京都新宿区南山伏町【都営大江戸線 牛込柳町駅徒歩4分】にある1LDK賃貸マンションです。
2021年7月築の13階建てのマンションで、お部屋は13階建ての13階部分です。
物件の広さは40.01m2で人気の1LDKです。
※お部屋のもっと詳しい内容や入居時期、諸条件のご相談など、ホームページには掲載が間に合わず載せきれていない情報もございます。
気になることが御座いましたらお気軽にメールにてお問い合わせください。
0120-72-3966
ピタットハウス武蔵境店
お問い合わせNO:RHS-GC3571586566

物件基本情報

所在地 東京都新宿区南山伏町   周辺MAP
交通 都営大江戸線 「牛込柳町駅」 徒歩4分
東京メトロ東西線 「神楽坂駅」 徒歩13分
都営大江戸線 「牛込神楽坂駅」 徒歩7分
種別 / 構造 マンション / RC造(鉄筋コンクリート造) 主要採光面 所在階 / 階数 13階 / 13階
築年月 2021年7月  間取り 1LDK( - ) 専有面積 40.01m2

物件詳細情報

損保 更新料 あり 24.9万円 鍵交換代 -
駐車場 なし 近隣駐車場   契約期間
借家区分
2年 -
現況 入居可能日 即入居可 取引態様 媒介
保証会社 リクルートフォレントインシュア 初回保証委託料(最低20,000円):月額賃料等の50%、2年目以降:10,000円/年 仲介手数料 27.39万円 バイク置き場
その他費用
  • 室内清掃費:61615円 鍵交換費:16500円 口座振替事務手数料:220円/月

設備詳細情報

キッチン
  • システムキッチン
バス・トイレ
  • バストイレ別
  • 浴室乾燥機
  • 洗面所独立
  • 室内洗濯機置き場
住空間
  • バルコニー
  • フローリング
  • 床暖房
  • エアコン
設備・サービス
  • オートロック
  • エレベーター
  • 宅配ボックス
  • CS
  • BS
  • CATV
特 徴
条件・その他  ペット:可能
コメント
備 考 -

学区情報

小学校区
()
中学校区
()
情報更新日:2026年05月30日 次回更新予定日:2026年06月13日
※各種情報と差異がある場合は現況優先となります
※物件情報の学区情報について
当サイト物件情報に記載されております通学区域(学区)情報は、国土数値情報ダウンロードサービスが提供する小学校区データ【2021年度】及び中学校区データ【2021年度】を元に加工したものですので、記載情報が現在の学区域と異なる場合がございます。国土数値情報ダウンロードサービスのWEBサイト上で記述通り、データは必ずしも正確とは言えません。また、通学区域(学区)は毎年見直しの対象となりますので、そちらを踏まえ学区情報は参考としてご活用下さい。

こちらの物件の空室状況

間取図 部屋番号 賃料
共益費/管理費
敷金
礼金
間取り
専有面積
お気に入り 物件詳細
この賃貸物件の空室1103の間取り画像
1103
ピタットハウス阿佐ヶ谷店 33万円
20,000円 -
1ヶ月
1ヶ月
2LDK
55.6m2
お気に入り 詳細を見る
この賃貸物件の空室1103の間取り画像
1103
ピタットハウス武蔵境店 33万円
20,000円 -
1ヶ月
1ヶ月
2LDK
55.6m2
お気に入り 詳細を見る
この賃貸物件の空室1306の間取り画像
1306
ピタットハウス武蔵境店 25.5万円
15,000円 -
1ヶ月
1ヶ月
1LDK
40.01m2
お気に入り 詳細を見る
この賃貸物件の空室1306の間取り画像
1306
ピタットハウス阿佐ヶ谷店 25.5万円
15,000円 -
1ヶ月
1ヶ月
1LDK
40.01m2
お気に入り 詳細を見る
この賃貸物件の空室1307の間取り画像
1307
ピタットハウス武蔵境店 24.9万円
15,000円 -
1ヶ月
1ヶ月
1LDK
40.01m2
お気に入り 詳細を見る
この賃貸物件の空室1307の間取り画像
1307
ピタットハウス阿佐ヶ谷店 24.9万円
15,000円 -
1ヶ月
1ヶ月
1LDK
40.01m2
お気に入り 詳細を見る
この賃貸物件の空室1308の間取り画像
1308
ピタットハウス武蔵境店 23万円
12,000円 -
1ヶ月
1ヶ月
ワンルーム
40.01m2
お気に入り 詳細を見る
この賃貸物件の空室1309の間取り画像
1309
ピタットハウス阿佐ヶ谷店 25.5万円
15,000円 -
1ヶ月
1ヶ月
1LDK
40.01m2
お気に入り 詳細を見る
この賃貸物件の空室1309の間取り画像
1309
ピタットハウス武蔵境店 25.5万円
15,000円 -
1ヶ月
1ヶ月
1LDK
40.01m2
お気に入り 詳細を見る
この賃貸物件の空室1310の間取り画像
1310
ピタットハウス阿佐ヶ谷店 24.9万円
15,000円 -
1ヶ月
1ヶ月
1LDK
40.01m2
お気に入り 詳細を見る
この賃貸物件の空室1310の間取り画像
1310
ピタットハウス武蔵境店 24.9万円
15,000円 -
1ヶ月
1ヶ月
1LDK
40.01m2
お気に入り 詳細を見る
この賃貸物件の空室206の間取り画像
206
ピタットハウス武蔵境店 22.5万円
15,000円 -
1ヶ月
1ヶ月
1LDK
38.42m2
お気に入り 詳細を見る
この賃貸物件の空室507の間取り画像
507
ピタットハウス武蔵境店 24.5万円
15,000円 -
1ヶ月
1ヶ月
1LDK
40.01m2
お気に入り 詳細を見る
この賃貸物件の空室606の間取り画像
606
ピタットハウス阿佐ヶ谷店 24.5万円
15,000円 -
1ヶ月
1ヶ月
1LDK
40.01m2
お気に入り 詳細を見る
この賃貸物件の空室606の間取り画像
606
ピタットハウス武蔵境店 24.5万円
15,000円 -
1ヶ月
1ヶ月
1LDK
40.01m2
お気に入り 詳細を見る
0120-72-3966
ピタットハウス武蔵境店
お問い合わせNO:RHS-GC3571586566

この物件に似た物件をチェック!


閲覧した物件の履歴

閲覧した物件の一覧を見る

最近検索した条件一覧



気になったら今すぐ!カンタンお問合せ



お問合せ内容必須
【備考欄】
希望条件・来店希望日・その他質問がございましたらご記入ください。
お客様情報
お名前必須
メールアドレス必須
電話番号



※ご入力いただいたお客さまの個人情報は、「個人情報の取扱いについて」に基づき適正に取り扱います。必ずお読みになり、同意の上お問い合わせください。




※ご記入いただいたメールアドレス宛てに、お問合せ内容の確認メールをお送りいたします。
※Yahoo!メールなどのフリーメールをご利用の場合、迷惑メールフォルダに入る場合があります。
 迷惑メールのフォルダ・設定等をご確認下さい。
 


▲ページのTOPへ戻る


お問合せはこちら

ピタットハウス武蔵境店 0120-72-3966

新しい時代
賃貸管理で
理想の入居率を実現!

問い合わせアイコン問い合わせ

会社情報

東洋リーベスト本店
東洋リーベスト本店(管理部)
0422-30-8810
  • 営業時間

    10:00〜17:30

  • 定休日

    火曜日・水曜日

アクセス
東洋リーベスト本店
ピタットハウス武蔵境店
0120-72-3966
  • 営業時間

    10:00〜19:00

  • 定休日

    毎週火曜日 隔週水曜日
    冬期(1月〜3月は無休)

アクセス
東洋リーベスト阿佐ヶ谷店
東洋リーベスト阿佐ヶ谷店
0120-30-2285
  • 営業時間

    10:00〜19:00

  • 定休日

    火曜日 水曜日
    冬期(1月〜3月は無休)

アクセス