パークアクシス西大島コンフォートスクエア 西大島の3LDK賃貸マンション|ピタットハウス武蔵境店

武蔵野市・三鷹市・杉並区の不動産なら東洋リーベスト(ピタットハウス武蔵境・ピタットハウス阿佐ヶ谷店)
TOPページ
賃貸物件検索
江東区の賃貸情報一覧
パークアクシス西大島コンフォートスクエア 西大島の3LDK賃貸マンション

パークアクシス西大島コンフォートスクエア 西大島の3LDK賃貸マンション

  • 33.9万円
    20,000円
  • 敷金
    1ヶ月
    礼金
    0ヶ月
    保証金
    0ヶ月
    敷引・償却
    0ヶ月-
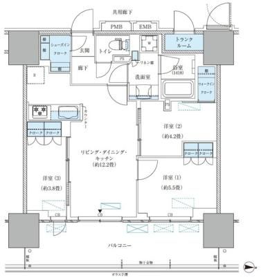
  • 間取り
    3LDK
    専有面積
    60.57m2
    築年月
    新築 
    所在階・階数
    14階・14階
  • 所在地
    東京都江東区大島4丁目  周辺MAP
  • 交通
    都営新宿線 「西大島駅」 徒歩4分
    JR総武線 「亀戸駅」 徒歩14分
    東京メトロ半蔵門線 「住吉駅」 徒歩16分
【建物外観】 外観 【間取】  【建物外観】 地形図・案内図 【建物外観】 エントランス 【建物外観】 共有部分 【建物外観】 その他
【建物外観】 外観
【間取】 
【建物外観】 地形図・案内図
【建物外観】 エントランス
【建物外観】 共有部分
【建物外観】 その他
  • 【建物外観】 外観
  • 【間取】 
  • 【建物外観】 地形図・案内図
  • 【建物外観】 エントランス
  • 【建物外観】 共有部分
  • 【建物外観】 その他

【スタッフからのイチオシポイント!】パークアクシス西大島コンフォートスクエア

東京都江東区大島4丁目【都営新宿線 西大島駅徒歩4分】にある3LDK賃貸マンションです。
新築築の14階建てのマンションで、お部屋は14階建ての14階部分です。
物件の広さは60.57m2で人気の3LDKです。
※お部屋のもっと詳しい内容や入居時期、諸条件のご相談など、ホームページには掲載が間に合わず載せきれていない情報もございます。
気になることが御座いましたらお気軽にメールにてお問い合わせください。
0120-72-3966
ピタットハウス武蔵境店
お問い合わせNO:RHS-GC4691976850

物件基本情報

所在地 東京都江東区大島4丁目   周辺MAP
交通 都営新宿線 「西大島駅」 徒歩4分
JR総武線 「亀戸駅」 徒歩14分
東京メトロ半蔵門線 「住吉駅」 徒歩16分
種別 / 構造 マンション / RC造(鉄筋コンクリート造) 主要採光面 所在階 / 階数 14階 / 14階
築年月 新築  間取り 3LDK( - ) 専有面積 60.57m2

物件詳細情報

損保 更新料 なし 鍵交換代 -
駐車場 なし 近隣駐車場   契約期間
借家区分
3年 定期借家
現況 入居可能日 即入居可 取引態様 媒介
保証会社 その他 初回保証委託料(最低20,000円):月額賃料等の50%、 2年目以降:9,600円/年 仲介手数料 37.29万円 バイク置き場
その他費用
  • 室内清掃費:113265円 口座振替事務手数料:220円/月

設備詳細情報

キッチン
  • システムキッチン
バス・トイレ
  • バストイレ別
  • 追焚機能浴室
  • 浴室乾燥機
  • 洗面所独立
  • 室内洗濯機置き場
住空間
  • バルコニー
  • フローリング
  • エアコン
設備・サービス
  • オートロック
  • エレベーター
  • 宅配ボックス
  • BS
  • CATV
特 徴
条件・その他  ペット:可能
コメント
備 考 -

学区情報

小学校区
()
中学校区
()
情報更新日:2026年04月17日 次回更新予定日:2026年05月01日
※各種情報と差異がある場合は現況優先となります
※物件情報の学区情報について
当サイト物件情報に記載されております通学区域(学区)情報は、国土数値情報ダウンロードサービスが提供する小学校区データ【2021年度】及び中学校区データ【2021年度】を元に加工したものですので、記載情報が現在の学区域と異なる場合がございます。国土数値情報ダウンロードサービスのWEBサイト上で記述通り、データは必ずしも正確とは言えません。また、通学区域(学区)は毎年見直しの対象となりますので、そちらを踏まえ学区情報は参考としてご活用下さい。

こちらの物件の空室状況

間取図 部屋番号 賃料
共益費/管理費
敷金
礼金
間取り
専有面積
お気に入り 物件詳細
この賃貸物件の空室1102の間取り画像
1102
ピタットハウス武蔵境店 14.8万円
12,000円 -
1ヶ月
0ヶ月
1DK
28.35m2
お気に入り 詳細を見る
この賃貸物件の空室1105の間取り画像
1105
ピタットハウス武蔵境店 14.5万円
12,000円 -
1ヶ月
0ヶ月
1DK
25.35m2
お気に入り 詳細を見る
この賃貸物件の空室1106の間取り画像
1106
ピタットハウス武蔵境店 14.5万円
12,000円 -
1ヶ月
0ヶ月
1DK
25.35m2
お気に入り 詳細を見る
この賃貸物件の空室1107の間取り画像
1107
ピタットハウス武蔵境店 14.8万円
12,000円 -
1ヶ月
0ヶ月
1DK
28.35m2
お気に入り 詳細を見る
この賃貸物件の空室1109の間取り画像
1109
ピタットハウス武蔵境店 14.5万円
12,000円 -
1ヶ月
0ヶ月
1DK
25.35m2
お気に入り 詳細を見る
この賃貸物件の空室1110の間取り画像
1110
ピタットハウス武蔵境店 14.5万円
12,000円 -
1ヶ月
0ヶ月
1DK
25.35m2
お気に入り 詳細を見る
この賃貸物件の空室1111の間取り画像
1111
ピタットハウス武蔵境店 14.5万円
12,000円 -
1ヶ月
0ヶ月
1DK
25.35m2
お気に入り 詳細を見る
この賃貸物件の空室1112の間取り画像
1112
ピタットハウス武蔵境店 14.5万円
12,000円 -
1ヶ月
0ヶ月
1DK
25.35m2
お気に入り 詳細を見る
この賃貸物件の空室1114の間取り画像
1114
ピタットハウス武蔵境店 14.5万円
12,000円 -
1ヶ月
0ヶ月
1DK
25.35m2
お気に入り 詳細を見る
この賃貸物件の空室1116の間取り画像
1116
ピタットハウス武蔵境店 14.1万円
12,000円 -
1ヶ月
0ヶ月
ワンルーム
26.83m2
お気に入り 詳細を見る
この賃貸物件の空室1122の間取り画像
1122
ピタットハウス武蔵境店 15.4万円
12,000円 -
1ヶ月
0ヶ月
1DK
31.8m2
お気に入り 詳細を見る
この賃貸物件の空室1124の間取り画像
1124
ピタットハウス武蔵境店 18.7万円
15,000円 -
1ヶ月
0ヶ月
1LDK
38.51m2
お気に入り 詳細を見る
この賃貸物件の空室1125の間取り画像
1125
ピタットハウス武蔵境店 19.3万円
15,000円 -
1ヶ月
0ヶ月
1LDK
39.09m2
お気に入り 詳細を見る
この賃貸物件の空室1129の間取り画像
1129
ピタットハウス武蔵境店 19.2万円
15,000円 -
1ヶ月
0ヶ月
1LDK
39.2m2
お気に入り 詳細を見る
この賃貸物件の空室1301の間取り画像
1301
ピタットハウス武蔵境店 31.2万円
18,000円 -
1ヶ月
0ヶ月
2LDK
56.35m2
お気に入り 詳細を見る
この賃貸物件の空室1303の間取り画像
1303
ピタットハウス武蔵境店 29.7万円
18,000円 -
1ヶ月
0ヶ月
2LDK
53.53m2
お気に入り 詳細を見る
この賃貸物件の空室1305の間取り画像
1305
ピタットハウス武蔵境店 27.7万円
18,000円 -
1ヶ月
0ヶ月
2LDK
50.71m2
お気に入り 詳細を見る
この賃貸物件の空室1308の間取り画像
1308
ピタットハウス武蔵境店 14.3万円
12,000円 -
1ヶ月
0ヶ月
ワンルーム
26.83m2
お気に入り 詳細を見る
この賃貸物件の空室1311の間取り画像
1311
ピタットハウス武蔵境店 15.8万円
12,000円 -
1ヶ月
0ヶ月
1DK
31.8m2
お気に入り 詳細を見る
この賃貸物件の空室1332の間取り画像
1332
ピタットハウス武蔵境店 13.3万円
12,000円 -
1ヶ月
0ヶ月
ワンルーム
25.2m2
お気に入り 詳細を見る
この賃貸物件の空室1404の間取り画像
1404
ピタットハウス武蔵境店 28.2万円
18,000円 -
1ヶ月
0ヶ月
2LDK
50.71m2
お気に入り 詳細を見る
この賃貸物件の空室1409の間取り画像
1409
ピタットハウス武蔵境店 33.9万円
20,000円 -
1ヶ月
0ヶ月
3LDK
60.57m2
お気に入り 詳細を見る
この賃貸物件の空室1411の間取り画像
1411
ピタットハウス武蔵境店 34.5万円
20,000円 -
1ヶ月
0ヶ月
3LDK
60.57m2
お気に入り 詳細を見る
この賃貸物件の空室1414の間取り画像
1414
ピタットハウス武蔵境店 28.6万円
18,000円 -
1ヶ月
0ヶ月
2LDK
51.2m2
お気に入り 詳細を見る
この賃貸物件の空室1416の間取り画像
1416
ピタットハウス武蔵境店 36.5万円
20,000円 -
1ヶ月
0ヶ月
3LDK
64m2
お気に入り 詳細を見る
この賃貸物件の空室1420の間取り画像
1420
ピタットハウス武蔵境店 27.9万円
18,000円 -
1ヶ月
0ヶ月
2LDK
50.4m2
お気に入り 詳細を見る
この賃貸物件の空室401の間取り画像
401
ピタットハウス武蔵境店 17.9万円
15,000円 -
1ヶ月
0ヶ月
1LDK
37.83m2
お気に入り 詳細を見る
この賃貸物件の空室413の間取り画像
413
ピタットハウス武蔵境店 18.6万円
15,000円 -
1ヶ月
0ヶ月
1LDK
39.78m2
お気に入り 詳細を見る
この賃貸物件の空室415の間取り画像
415
ピタットハウス武蔵境店 17.9万円
15,000円 -
1ヶ月
0ヶ月
1LDK
37.83m2
お気に入り 詳細を見る
この賃貸物件の空室425の間取り画像
425
ピタットハウス武蔵境店 18.4万円
15,000円 -
1ヶ月
0ヶ月
1LDK
39.09m2
お気に入り 詳細を見る
この賃貸物件の空室426の間取り画像
426
ピタットハウス武蔵境店 16.7万円
15,000円 -
1ヶ月
0ヶ月
1LDK
34.4m2
お気に入り 詳細を見る
この賃貸物件の空室427の間取り画像
427
ピタットハウス武蔵境店 17万円
15,000円 -
1ヶ月
0ヶ月
1LDK
34.81m2
お気に入り 詳細を見る
この賃貸物件の空室428の間取り画像
428
ピタットハウス武蔵境店 18.8万円
15,000円 -
1ヶ月
0ヶ月
1LDK
39.85m2
お気に入り 詳細を見る
この賃貸物件の空室429の間取り画像
429
ピタットハウス武蔵境店 18.5万円
15,000円 -
1ヶ月
0ヶ月
1LDK
39.2m2
お気に入り 詳細を見る
この賃貸物件の空室432の間取り画像
432
ピタットハウス武蔵境店 17.5万円
15,000円 -
1ヶ月
0ヶ月
1LDK
36.8m2
お気に入り 詳細を見る
この賃貸物件の空室435の間取り画像
435
ピタットハウス武蔵境店 18.8万円
15,000円 -
1ヶ月
0ヶ月
1LDK
39.85m2
お気に入り 詳細を見る
この賃貸物件の空室509の間取り画像
509
ピタットハウス武蔵境店 13.8万円
12,000円 -
1ヶ月
0ヶ月
1DK
25.35m2
お気に入り 詳細を見る
この賃貸物件の空室606の間取り画像
606
ピタットハウス武蔵境店 13.9万円
12,000円 -
1ヶ月
0ヶ月
1DK
25.35m2
お気に入り 詳細を見る
この賃貸物件の空室613の間取り画像
613
ピタットハウス武蔵境店 18.8万円
15,000円 -
1ヶ月
0ヶ月
1LDK
39.78m2
お気に入り 詳細を見る
この賃貸物件の空室615の間取り画像
615
ピタットハウス武蔵境店 18.1万円
15,000円 -
1ヶ月
0ヶ月
1LDK
37.83m2
お気に入り 詳細を見る
この賃貸物件の空室629の間取り画像
629
ピタットハウス武蔵境店 18.7万円
15,000円 -
1ヶ月
0ヶ月
1LDK
39.2m2
お気に入り 詳細を見る
この賃貸物件の空室717の間取り画像
717
ピタットハウス武蔵境店 13.5万円
12,000円 -
1ヶ月
0ヶ月
ワンルーム
25.63m2
お気に入り 詳細を見る
この賃貸物件の空室816の間取り画像
816
ピタットハウス武蔵境店 13.8万円
12,000円 -
1ヶ月
0ヶ月
ワンルーム
26.83m2
お気に入り 詳細を見る
この賃貸物件の空室833の間取り画像
833
ピタットハウス武蔵境店 14.2万円
12,000円 -
1ヶ月
0ヶ月
1DK
27.2m2
お気に入り 詳細を見る
この賃貸物件の空室901の間取り画像
901
ピタットハウス武蔵境店 18.4万円
15,000円 -
1ヶ月
0ヶ月
1LDK
37.83m2
お気に入り 詳細を見る
この賃貸物件の空室907の間取り画像
907
ピタットハウス武蔵境店 14.6万円
12,000円 -
1ヶ月
0ヶ月
1DK
28.35m2
お気に入り 詳細を見る
この賃貸物件の空室915の間取り画像
915
ピタットハウス武蔵境店 18.4万円
15,000円 -
1ヶ月
0ヶ月
1LDK
37.83m2
お気に入り 詳細を見る
この賃貸物件の空室916の間取り画像
916
ピタットハウス武蔵境店 13.7万円
12,000円 -
1ヶ月
0ヶ月
ワンルーム
26.83m2
お気に入り 詳細を見る
この賃貸物件の空室918の間取り画像
918
ピタットハウス武蔵境店 15.2万円
12,000円 -
1ヶ月
0ヶ月
1DK
31.8m2
お気に入り 詳細を見る
この賃貸物件の空室919の間取り画像
919
ピタットハウス武蔵境店 15.2万円
12,000円 -
1ヶ月
0ヶ月
1DK
31.8m2
お気に入り 詳細を見る
この賃貸物件の空室921の間取り画像
921
ピタットハウス武蔵境店 15.2万円
12,000円 -
1ヶ月
0ヶ月
1DK
31.8m2
お気に入り 詳細を見る
この賃貸物件の空室925の間取り画像
925
ピタットハウス武蔵境店 19.1万円
15,000円 -
1ヶ月
0ヶ月
1LDK
39.09m2
お気に入り 詳細を見る
この賃貸物件の空室926の間取り画像
926
ピタットハウス武蔵境店 17.2万円
15,000円 -
1ヶ月
0ヶ月
1LDK
34.4m2
お気に入り 詳細を見る
この賃貸物件の空室927の間取り画像
927
ピタットハウス武蔵境店 17.5万円
15,000円 -
1ヶ月
0ヶ月
1LDK
34.81m2
お気に入り 詳細を見る
この賃貸物件の空室928の間取り画像
928
ピタットハウス武蔵境店 19.5万円
15,000円 -
1ヶ月
0ヶ月
1LDK
39.85m2
お気に入り 詳細を見る
この賃貸物件の空室929の間取り画像
929
ピタットハウス武蔵境店 19.2万円
15,000円 -
1ヶ月
0ヶ月
1LDK
39.2m2
お気に入り 詳細を見る
この賃貸物件の空室933の間取り画像
933
ピタットハウス武蔵境店 14.3万円
12,000円 -
1ヶ月
0ヶ月
1DK
27.2m2
お気に入り 詳細を見る
この賃貸物件の空室934の間取り画像
934
ピタットハウス武蔵境店 19.2万円
15,000円 -
1ヶ月
0ヶ月
1LDK
39.2m2
お気に入り 詳細を見る
この賃貸物件の空室935の間取り画像
935
ピタットハウス武蔵境店 19.5万円
15,000円 -
1ヶ月
0ヶ月
1LDK
39.85m2
お気に入り 詳細を見る
0120-72-3966
ピタットハウス武蔵境店
お問い合わせNO:RHS-GC4691976850

この物件に似た物件をチェック!


閲覧した物件の履歴

閲覧した物件の一覧を見る

最近検索した条件一覧



気になったら今すぐ!カンタンお問合せ



お問合せ内容必須
【備考欄】
希望条件・来店希望日・その他質問がございましたらご記入ください。
お客様情報
お名前必須
メールアドレス必須
電話番号



※ご入力いただいたお客さまの個人情報は、「個人情報の取扱いについて」に基づき適正に取り扱います。必ずお読みになり、同意の上お問い合わせください。




※ご記入いただいたメールアドレス宛てに、お問合せ内容の確認メールをお送りいたします。
※Yahoo!メールなどのフリーメールをご利用の場合、迷惑メールフォルダに入る場合があります。
 迷惑メールのフォルダ・設定等をご確認下さい。
 


▲ページのTOPへ戻る


お問合せはこちら

ピタットハウス武蔵境店 0120-72-3966

新しい時代
賃貸管理で
理想の入居率を実現!

問い合わせアイコン問い合わせ

会社情報

東洋リーベスト本店
東洋リーベスト本店(管理部)
0422-30-8810
  • 営業時間

    10:00〜17:30

  • 定休日

    火曜日・水曜日

アクセス
東洋リーベスト本店
ピタットハウス武蔵境店
0120-72-3966
  • 営業時間

    10:00〜19:00

  • 定休日

    毎週火曜日 隔週水曜日
    冬期(1月〜3月は無休)

アクセス
東洋リーベスト阿佐ヶ谷店
東洋リーベスト阿佐ヶ谷店
0120-30-2285
  • 営業時間

    10:00〜19:00

  • 定休日

    火曜日 水曜日
    冬期(1月〜3月は無休)

アクセス