下井草3丁目 新築戸建 東京都杉並区下井草3丁目|7,080万円の新築一戸建て|株式会社東洋リーベスト
| 価格 | 7,080万円 ![]() |
||||
|---|---|---|---|---|---|
| 所在地 | 東京都杉並区下井草3丁目
この地域周辺の物件を見る |
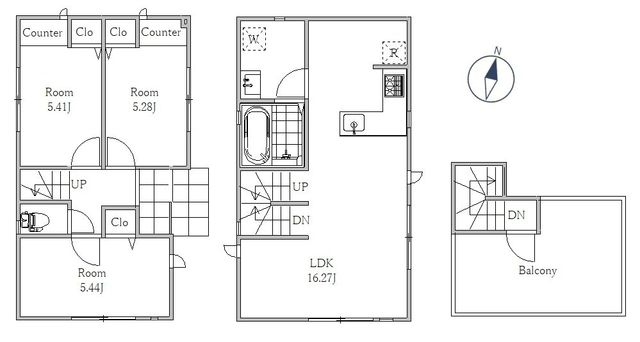
土地面積 | 76.34m² (23.09坪) | 建物面積 | 74.3u |
| 築年月 | 2026年9月築 | 間取り | 3LDK (-) | ||
| 交通 |
西武新宿線 下井草 徒歩9分
JR中央本線 荻窪 バス20分 銀杏稲荷 停歩3分 |
||||
| 特徴 |
|
|---|---|
| セールスコメント | 〜〜〜スタッフの口コミ〜〜〜 下井草駅徒歩9分と立地の良さが魅力です! 周りは車通りが少なく、人通りも少なく住民しか通らない道路なのでとても静かに暮らしていけます。 落ち着いた住環境を重視する方にぴったりです! 〜〜〜ここに注目!〜〜〜 ・建物完成施工例ご見学可能! ・下井草駅徒歩9分 ・広々LDK ・全居室収納有 ・床下収納 ・全室ペアガラス ・浴室乾燥機 ・駐車スペース有 ・コンビニ徒歩5分 ・スーパー徒歩6分 ・閑静な住宅街 ・落ち着いた住環境 |
| 採光面 | - | 構造/階数 | 木造/地上2階建 |
|---|---|---|---|
| 建ぺい率 | 50(%) | 容積率 | 100(%) |
| 駐車場 | - | 現況/引渡し | -/相談 |
| 土地権利 | 所有権 | 私道負担面積 | - |
| 接道状況 | - | 用途地域 |
第一種低層住居専用地域
|
| セットバック | - | 法令上の制限 | - |
| 地目 | 宅地 | 地勢 | |
| 建築確認番号 | 第25UDI1T建04727号 | 都市計画 | 市街化区域 |
| 取引態様 | 仲介 | ||
| 情報更新日 | 2026年05月10日 | 次回更新日 | 2026年05月24日 |
| 小学校区 | 杉並区立桃井第五小学校 (東京都杉並区) この学区の他の物件を見る |
中学校区 | 東原中学校 (東京都杉並区) この学区の他の物件を見る |
|---|
| 価格 | 万円 | ||
|---|---|---|---|
| 年利率 | % |
||
| ボーナス払い | 返済年数 | ||
| 頭金 | 直接入力する | 万円 | |

毎月のご返済額 |
ボーナス(×年2回) |
物件価格7,080万円 |
![]() |
![]() |
杉並区下井草3丁目
7080万円〜7580万円 |
下井草駅徒歩9分と立地の良さが魅力です! 周りは車通りが少なく、人通りも少なく住民しか通らない道路なのでとても静かに暮らしていけます。 落ち着いた住環境を重視する方にぴったりです!