パークシティ中野 ザ タワー ブリーズ 中野の2LDK賃貸マンション|ピタットハウス武蔵境店

武蔵野市・三鷹市・杉並区の不動産なら東洋リーベスト(ピタットハウス武蔵境・ピタットハウス阿佐ヶ谷店)
TOPページ
賃貸物件検索
中野区の賃貸情報一覧
パークシティ中野 ザ タワー ブリーズ 中野の2LDK賃貸マンション

パークシティ中野 ザ タワー ブリーズ 中野の2LDK賃貸マンション

  • 32.5万円
    20,000円
  • 敷金
    1ヶ月
    礼金
    1ヶ月
    保証金
    0ヶ月
    敷引・償却
    0ヶ月-
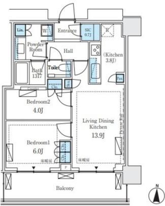
  • 間取り
    2LDK
    専有面積
    55.84m2
    築年月
    新築 
    所在階・階数
    6階・20階
  • 所在地
    東京都中野区中野4丁目  周辺MAP
  • 交通
    JR中央線 「中野駅」 徒歩8分
    東京メトロ東西線 「中野駅」 徒歩8分
【建物外観】 外観 【間取】  【建物外観】 地形図・案内図 【建物外観】 その他
【建物外観】 外観
【間取】 
【建物外観】 地形図・案内図
【建物外観】 その他
  • 【建物外観】 外観
  • 【間取】 
  • 【建物外観】 地形図・案内図
  • 【建物外観】 その他

【スタッフからのイチオシポイント!】パークシティ中野 ザ タワー ブリーズ

東京都中野区中野4丁目【JR中央線 中野駅徒歩8分】にある2LDK賃貸マンションです。
新築築の20階建てのマンションで、お部屋は20階建ての6階部分です。
物件の広さは55.84m2で人気の2LDKです。
※お部屋のもっと詳しい内容や入居時期、諸条件のご相談など、ホームページには掲載が間に合わず載せきれていない情報もございます。
気になることが御座いましたらお気軽にメールにてお問い合わせください。
0120-72-3966
ピタットハウス武蔵境店
お問い合わせNO:RHS-GC479770273

物件基本情報

所在地 東京都中野区中野4丁目   周辺MAP
交通 JR中央線 「中野駅」 徒歩8分
東京メトロ東西線 「中野駅」 徒歩8分
種別 / 構造 マンション / RC造(鉄筋コンクリート造) 主要採光面 所在階 / 階数 6階 / 20階
築年月 新築  間取り 2LDK( - ) 専有面積 55.84m2

物件詳細情報

損保 更新料 なし 鍵交換代 -
駐車場 なし 近隣駐車場   契約期間
借家区分
2年 定期借家
現況 空家 入居可能日 2026年5月31日 取引態様 媒介
保証会社 その他 初回保証委託料(最低15,000円):月額賃料等の50%、 2年目以降:10,000円/年 仲介手数料 35.75万円 バイク置き場
その他費用
  • 室内清掃費:104420円 口座振替事務手数料:220円/月

設備詳細情報

キッチン
  • システムキッチン
バス・トイレ
  • バストイレ別
  • 洗面所独立
  • 室内洗濯機置き場
  • 分譲賃貸
住空間
  • バルコニー
  • 南向き
  • フローリング
設備・サービス
  • オートロック
  • エレベーター
  • 宅配ボックス
特 徴
条件・その他  
コメント
備 考 -

学区情報

小学校区
()
中学校区
()
情報更新日:2026年05月30日 次回更新予定日:2026年06月13日
※各種情報と差異がある場合は現況優先となります
※物件情報の学区情報について
当サイト物件情報に記載されております通学区域(学区)情報は、国土数値情報ダウンロードサービスが提供する小学校区データ【2021年度】及び中学校区データ【2021年度】を元に加工したものですので、記載情報が現在の学区域と異なる場合がございます。国土数値情報ダウンロードサービスのWEBサイト上で記述通り、データは必ずしも正確とは言えません。また、通学区域(学区)は毎年見直しの対象となりますので、そちらを踏まえ学区情報は参考としてご活用下さい。

こちらの物件の空室状況

間取図 部屋番号 賃料
共益費/管理費
敷金
礼金
間取り
専有面積
お気に入り 物件詳細
この賃貸物件の空室1004の間取り画像
1004
ピタットハウス武蔵境店 19万円
20,000円 -
1ヶ月
1ヶ月
1LDK
36.97m2
お気に入り 詳細を見る
この賃貸物件の空室1014の間取り画像
1014
ピタットハウス武蔵境店 20.8万円
20,000円 -
1ヶ月
1ヶ月
1LDK
39.94m2
お気に入り 詳細を見る
この賃貸物件の空室1104の間取り画像
1104
ピタットハウス武蔵境店 19.1万円
20,000円 -
1ヶ月
1ヶ月
1LDK
36.97m2
お気に入り 詳細を見る
この賃貸物件の空室1111の間取り画像
1111
ピタットハウス武蔵境店 21.7万円
20,000円 -
1ヶ月
1ヶ月
1LDK
41.48m2
お気に入り 詳細を見る
この賃貸物件の空室1203の間取り画像
1203
ピタットハウス武蔵境店 25.2万円
20,000円 -
1ヶ月
1ヶ月
2LDK
46.16m2
お気に入り 詳細を見る
この賃貸物件の空室1204の間取り画像
1204
ピタットハウス武蔵境店 21.6万円
20,000円 -
1ヶ月
1.5ヶ月
1LDK
36.97m2
お気に入り 詳細を見る
この賃貸物件の空室1304の間取り画像
1304
ピタットハウス武蔵境店 19.3万円
20,000円 -
1ヶ月
1ヶ月
1LDK
36.97m2
お気に入り 詳細を見る
この賃貸物件の空室1311の間取り画像
1311
ピタットハウス武蔵境店 21.9万円
20,000円 -
1ヶ月
1ヶ月
1LDK
41.48m2
お気に入り 詳細を見る
この賃貸物件の空室1404の間取り画像
1404
ピタットハウス武蔵境店 19.4万円
20,000円 -
1ヶ月
1.5ヶ月
1LDK
36.97m2
お気に入り 詳細を見る
この賃貸物件の空室1504の間取り画像
1504
ピタットハウス武蔵境店 19.5万円
20,000円 -
1ヶ月
1.5ヶ月
1LDK
36.97m2
お気に入り 詳細を見る
この賃貸物件の空室1511の間取り画像
1511
ピタットハウス武蔵境店 22.1万円
20,000円 -
1ヶ月
1.5ヶ月
1LDK
41.48m2
お気に入り 詳細を見る
この賃貸物件の空室1611の間取り画像
1611
ピタットハウス武蔵境店 22.2万円
20,000円 -
1ヶ月
1.5ヶ月
1LDK
41.48m2
お気に入り 詳細を見る
この賃貸物件の空室1804の間取り画像
1804
ピタットハウス武蔵境店 19.8万円
20,000円 -
1ヶ月
1.5ヶ月
1LDK
36.97m2
お気に入り 詳細を見る
この賃貸物件の空室1811の間取り画像
1811
ピタットハウス武蔵境店 22.4万円
20,000円 -
1ヶ月
1.5ヶ月
1LDK
41.48m2
お気に入り 詳細を見る
この賃貸物件の空室414の間取り画像
414
ピタットハウス武蔵境店 20.2万円
20,000円 -
1ヶ月
1ヶ月
1LDK
39.94m2
お気に入り 詳細を見る
この賃貸物件の空室415の間取り画像
415
ピタットハウス武蔵境店 18.7万円
15,000円 -
1ヶ月
1ヶ月
1DK
35.04m2
お気に入り 詳細を見る
この賃貸物件の空室504の間取り画像
504
ピタットハウス武蔵境店 18.4万円
20,000円 -
1ヶ月
1ヶ月
1LDK
36.97m2
お気に入り 詳細を見る
この賃貸物件の空室512の間取り画像
512
ピタットハウス武蔵境店 29.4万円
20,000円 -
1ヶ月
1ヶ月
2LDK
56.99m2
お気に入り 詳細を見る
この賃貸物件の空室515の間取り画像
515
ピタットハウス武蔵境店 18.8万円
15,000円 -
1ヶ月
1ヶ月
1DK
35.04m2
お気に入り 詳細を見る
この賃貸物件の空室516の間取り画像
516
ピタットハウス武蔵境店 19.8万円
- -
1ヶ月
2ヶ月
1LDK
35.07m2
お気に入り 詳細を見る
この賃貸物件の空室604の間取り画像
604
ピタットハウス武蔵境店 18.6万円
20,000円 -
1ヶ月
1ヶ月
1LDK
36.97m2
お気に入り 詳細を見る
この賃貸物件の空室609の間取り画像
609
ピタットハウス武蔵境店 32.5万円
20,000円 -
1ヶ月
1ヶ月
2LDK
55.84m2
お気に入り 詳細を見る
この賃貸物件の空室612の間取り画像
612
ピタットハウス武蔵境店 29.5万円
20,000円 -
1ヶ月
1ヶ月
2LDK
56.99m2
お気に入り 詳細を見る
この賃貸物件の空室614の間取り画像
614
ピタットハウス武蔵境店 20.7万円
20,000円 -
1ヶ月
1ヶ月
1LDK
39.94m2
お気に入り 詳細を見る
この賃貸物件の空室703の間取り画像
703
ピタットハウス武蔵境店 25.9万円
20,000円 -
1ヶ月
1ヶ月
2LDK
46.16m2
お気に入り 詳細を見る
この賃貸物件の空室704の間取り画像
704
ピタットハウス武蔵境店 20万円
20,000円 -
1ヶ月
1ヶ月
1LDK
36.97m2
お気に入り 詳細を見る
この賃貸物件の空室709の間取り画像
709
ピタットハウス武蔵境店 32.6万円
20,000円 -
1ヶ月
1ヶ月
2LDK
55.84m2
お気に入り 詳細を見る
この賃貸物件の空室712の間取り画像
712
ピタットハウス武蔵境店 29.6万円
20,000円 -
1ヶ月
1ヶ月
2LDK
56.99m2
お気に入り 詳細を見る
この賃貸物件の空室804の間取り画像
804
ピタットハウス武蔵境店 18.8万円
20,000円 -
1ヶ月
1ヶ月
1LDK
36.97m2
お気に入り 詳細を見る
この賃貸物件の空室809の間取り画像
809
ピタットハウス武蔵境店 32.7万円
20,000円 -
1ヶ月
1ヶ月
2LDK
55.84m2
お気に入り 詳細を見る
この賃貸物件の空室904の間取り画像
904
ピタットハウス武蔵境店 18.9万円
20,000円 -
1ヶ月
1ヶ月
1LDK
36.97m2
お気に入り 詳細を見る
0120-72-3966
ピタットハウス武蔵境店
お問い合わせNO:RHS-GC479770273

この物件に似た物件をチェック!


閲覧した物件の履歴

閲覧した物件の一覧を見る

最近検索した条件一覧



気になったら今すぐ!カンタンお問合せ



お問合せ内容必須
【備考欄】
希望条件・来店希望日・その他質問がございましたらご記入ください。
お客様情報
お名前必須
メールアドレス必須
電話番号



※ご入力いただいたお客さまの個人情報は、「個人情報の取扱いについて」に基づき適正に取り扱います。必ずお読みになり、同意の上お問い合わせください。




※ご記入いただいたメールアドレス宛てに、お問合せ内容の確認メールをお送りいたします。
※Yahoo!メールなどのフリーメールをご利用の場合、迷惑メールフォルダに入る場合があります。
 迷惑メールのフォルダ・設定等をご確認下さい。
 


▲ページのTOPへ戻る


お問合せはこちら

ピタットハウス武蔵境店 0120-72-3966

新しい時代
賃貸管理で
理想の入居率を実現!

問い合わせアイコン問い合わせ

会社情報

東洋リーベスト本店
東洋リーベスト本店(管理部)
0422-30-8810
  • 営業時間

    10:00〜17:30

  • 定休日

    火曜日・水曜日

アクセス
東洋リーベスト本店
ピタットハウス武蔵境店
0120-72-3966
  • 営業時間

    10:00〜19:00

  • 定休日

    毎週火曜日 隔週水曜日
    冬期(1月〜3月は無休)

アクセス
東洋リーベスト阿佐ヶ谷店
東洋リーベスト阿佐ヶ谷店
0120-30-2285
  • 営業時間

    10:00〜19:00

  • 定休日

    火曜日 水曜日
    冬期(1月〜3月は無休)

アクセス