PRIME SQUAREV 大森の1LDK賃貸マンション|ピタットハウス武蔵境店

武蔵野市・三鷹市・杉並区の不動産なら東洋リーベスト(ピタットハウス武蔵境・ピタットハウス阿佐ヶ谷店)
TOPページ
賃貸物件検索
大田区の賃貸情報一覧
PRIME SQUAREV 大森の1LDK賃貸マンション

NEW PRIME SQUAREV 大森の1LDK賃貸マンション

  • 16.4万円
    10,000円
  • 敷金
    1ヶ月
    礼金
    1ヶ月
    保証金
    0ヶ月
    敷引・償却
    0ヶ月-
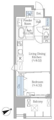
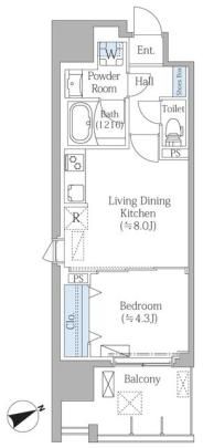
  • 間取り
    1LDK
    専有面積
    33.95m2
    築年月
    新築 
    所在階・階数
    10階・14階
  • 所在地
    東京都大田区大森北1丁目  周辺MAP
  • 交通
    JR京浜東北・根岸線 「大森駅」 徒歩6分
【建物外観】 外観 【間取】  【建物外観】 地形図・案内図 【建物外観】 その他
【建物外観】 外観
【間取】 
【建物外観】 地形図・案内図
【建物外観】 その他
  • 【建物外観】 外観
  • 【間取】 
  • 【建物外観】 地形図・案内図
  • 【建物外観】 その他

【スタッフからのイチオシポイント!】PRIME SQUAREV

東京都大田区大森北1丁目【JR京浜東北・根岸線 大森駅徒歩6分】にある1LDK賃貸マンションです。
新築築の14階建てのマンションで、お部屋は14階建ての10階部分です。
物件の広さは33.95m2で人気の1LDKです。
※お部屋のもっと詳しい内容や入居時期、諸条件のご相談など、ホームページには掲載が間に合わず載せきれていない情報もございます。
気になることが御座いましたらお気軽にメールにてお問い合わせください。
0120-72-3966
ピタットハウス武蔵境店
お問い合わせNO:RHS-GC4807876118

物件基本情報

所在地 東京都大田区大森北1丁目   周辺MAP
交通 JR京浜東北・根岸線 「大森駅」 徒歩6分
種別 / 構造 マンション / RC造(鉄筋コンクリート造) 主要採光面 南西 所在階 / 階数 10階 / 14階
築年月 新築  間取り 1LDK( - ) 専有面積 33.95m2

物件詳細情報

損保 更新料 なし 鍵交換代 -
駐車場 なし 近隣駐車場   契約期間
借家区分
2年 定期借家
現況 空家 入居可能日 2026年5月12日 取引態様 媒介
保証会社 その他 初回保証委託料(最低15,000円):月額賃料等の50%、 2年目以降:10,000円/年 仲介手数料 18.04万円 バイク置き場
その他費用
  • 室内清掃費:59400円 口座振替事務手数料:220円/月

設備詳細情報

キッチン
バス・トイレ
  • バストイレ別
住空間
  • バルコニー
  • 南西向き
設備・サービス
  • オートロック
  • エレベーター
  • 宅配ボックス
特 徴
条件・その他  
コメント
備 考 -

学区情報

小学校区
()
中学校区
()
情報更新日:2026年04月14日 次回更新予定日:2026年04月28日
※各種情報と差異がある場合は現況優先となります
※物件情報の学区情報について
当サイト物件情報に記載されております通学区域(学区)情報は、国土数値情報ダウンロードサービスが提供する小学校区データ【2021年度】及び中学校区データ【2021年度】を元に加工したものですので、記載情報が現在の学区域と異なる場合がございます。国土数値情報ダウンロードサービスのWEBサイト上で記述通り、データは必ずしも正確とは言えません。また、通学区域(学区)は毎年見直しの対象となりますので、そちらを踏まえ学区情報は参考としてご活用下さい。

こちらの物件の空室状況

間取図 部屋番号 賃料
共益費/管理費
敷金
礼金
間取り
専有面積
お気に入り 物件詳細
この賃貸物件の空室1001の間取り画像
1001
ピタットハウス武蔵境店 16.4万円
10,000円 -
1ヶ月
1ヶ月
1LDK
33.95m2
お気に入り 詳細を見る
この賃貸物件の空室1002の間取り画像
1002
ピタットハウス武蔵境店 16.5万円
10,000円 -
1ヶ月
1ヶ月
1LDK
33.41m2
お気に入り 詳細を見る
この賃貸物件の空室1003の間取り画像
1003
ピタットハウス武蔵境店 22.6万円
15,000円 -
1ヶ月
1ヶ月
2DK
45.43m2
お気に入り 詳細を見る
この賃貸物件の空室1101の間取り画像
1101
ピタットハウス武蔵境店 16.6万円
10,000円 -
1ヶ月
1ヶ月
1LDK
33.95m2
お気に入り 詳細を見る
この賃貸物件の空室1102の間取り画像
1102
ピタットハウス武蔵境店 16.7万円
10,000円 -
1ヶ月
1ヶ月
1LDK
33.41m2
お気に入り 詳細を見る
この賃貸物件の空室1103の間取り画像
1103
ピタットハウス武蔵境店 22.8万円
15,000円 -
1ヶ月
1ヶ月
2DK
45.43m2
お気に入り 詳細を見る
この賃貸物件の空室1201の間取り画像
1201
ピタットハウス武蔵境店 16.7万円
10,000円 -
1ヶ月
1ヶ月
1LDK
33.95m2
お気に入り 詳細を見る
この賃貸物件の空室1202の間取り画像
1202
ピタットハウス武蔵境店 16.8万円
10,000円 -
1ヶ月
1ヶ月
1LDK
33.41m2
お気に入り 詳細を見る
この賃貸物件の空室1203の間取り画像
1203
ピタットハウス武蔵境店 23万円
15,000円 -
1ヶ月
1ヶ月
2DK
45.43m2
お気に入り 詳細を見る
この賃貸物件の空室302の間取り画像
302
ピタットハウス武蔵境店 13.4万円
10,000円 -
1ヶ月
1ヶ月
1K
27.81m2
お気に入り 詳細を見る
この賃貸物件の空室303の間取り画像
303
ピタットハウス武蔵境店 13.2万円
10,000円 -
1ヶ月
1ヶ月
1K
27.92m2
お気に入り 詳細を見る
この賃貸物件の空室401の間取り画像
401
ピタットハウス武蔵境店 15.4万円
10,000円 -
1ヶ月
1ヶ月
1DK
32.3m2
お気に入り 詳細を見る
この賃貸物件の空室402の間取り画像
402
ピタットハウス武蔵境店 13.5万円
10,000円 -
1ヶ月
1ヶ月
1K
27.81m2
お気に入り 詳細を見る
この賃貸物件の空室403の間取り画像
403
ピタットハウス武蔵境店 13.3万円
10,000円 -
1ヶ月
1ヶ月
1K
27.92m2
お気に入り 詳細を見る
この賃貸物件の空室404の間取り画像
404
ピタットハウス武蔵境店 13.4万円
10,000円 -
1ヶ月
1ヶ月
1K
28.06m2
お気に入り 詳細を見る
この賃貸物件の空室501の間取り画像
501
ピタットハウス武蔵境店 15.5万円
10,000円 -
1ヶ月
1ヶ月
1DK
32.3m2
お気に入り 詳細を見る
この賃貸物件の空室502の間取り画像
502
ピタットハウス武蔵境店 13.6万円
10,000円 -
1ヶ月
1ヶ月
1K
27.81m2
お気に入り 詳細を見る
この賃貸物件の空室503の間取り画像
503
ピタットハウス武蔵境店 13.4万円
10,000円 -
1ヶ月
1ヶ月
1K
27.92m2
お気に入り 詳細を見る
この賃貸物件の空室504の間取り画像
504
ピタットハウス武蔵境店 13.5万円
10,000円 -
1ヶ月
1ヶ月
1K
28.06m2
お気に入り 詳細を見る
この賃貸物件の空室601の間取り画像
601
ピタットハウス武蔵境店 15.6万円
10,000円 -
1ヶ月
1ヶ月
1DK
32.3m2
お気に入り 詳細を見る
この賃貸物件の空室602の間取り画像
602
ピタットハウス武蔵境店 13.7万円
10,000円 -
1ヶ月
1ヶ月
1K
27.81m2
お気に入り 詳細を見る
この賃貸物件の空室603の間取り画像
603
ピタットハウス武蔵境店 13.5万円
10,000円 -
1ヶ月
1ヶ月
1K
27.92m2
お気に入り 詳細を見る
この賃貸物件の空室604の間取り画像
604
ピタットハウス武蔵境店 13.6万円
10,000円 -
1ヶ月
1ヶ月
1K
28.06m2
お気に入り 詳細を見る
この賃貸物件の空室801の間取り画像
801
ピタットハウス武蔵境店 16.1万円
10,000円 -
1ヶ月
1ヶ月
1LDK
33.95m2
お気に入り 詳細を見る
この賃貸物件の空室802の間取り画像
802
ピタットハウス武蔵境店 16.2万円
10,000円 -
1ヶ月
1ヶ月
1LDK
33.41m2
お気に入り 詳細を見る
この賃貸物件の空室803の間取り画像
803
ピタットハウス武蔵境店 22.1万円
15,000円 -
1ヶ月
1ヶ月
2DK
45.43m2
お気に入り 詳細を見る
この賃貸物件の空室901の間取り画像
901
ピタットハウス武蔵境店 16.2万円
10,000円 -
1ヶ月
1ヶ月
1LDK
33.95m2
お気に入り 詳細を見る
この賃貸物件の空室902の間取り画像
902
ピタットハウス武蔵境店 16.3万円
10,000円 -
1ヶ月
1ヶ月
1LDK
33.41m2
お気に入り 詳細を見る
0120-72-3966
ピタットハウス武蔵境店
お問い合わせNO:RHS-GC4807876118

この物件に似た物件をチェック!


閲覧した物件の履歴

閲覧した物件の一覧を見る

最近検索した条件一覧



気になったら今すぐ!カンタンお問合せ



お問合せ内容必須
【備考欄】
希望条件・来店希望日・その他質問がございましたらご記入ください。
お客様情報
お名前必須
メールアドレス必須
電話番号



※ご入力いただいたお客さまの個人情報は、「個人情報の取扱いについて」に基づき適正に取り扱います。必ずお読みになり、同意の上お問い合わせください。




※ご記入いただいたメールアドレス宛てに、お問合せ内容の確認メールをお送りいたします。
※Yahoo!メールなどのフリーメールをご利用の場合、迷惑メールフォルダに入る場合があります。
 迷惑メールのフォルダ・設定等をご確認下さい。
 


▲ページのTOPへ戻る


お問合せはこちら

ピタットハウス武蔵境店 0120-72-3966

新しい時代
賃貸管理で
理想の入居率を実現!

問い合わせアイコン問い合わせ

会社情報

東洋リーベスト本店
東洋リーベスト本店(管理部)
0422-30-8810
  • 営業時間

    10:00〜17:30

  • 定休日

    火曜日・水曜日

アクセス
東洋リーベスト本店
ピタットハウス武蔵境店
0120-72-3966
  • 営業時間

    10:00〜19:00

  • 定休日

    毎週火曜日 隔週水曜日
    冬期(1月〜3月は無休)

アクセス
東洋リーベスト阿佐ヶ谷店
東洋リーベスト阿佐ヶ谷店
0120-30-2285
  • 営業時間

    10:00〜19:00

  • 定休日

    火曜日 水曜日
    冬期(1月〜3月は無休)

アクセス