調布市染地3丁目 RC造注文住宅♪ 東京都調布市染地3丁目|7,770万円の中古一戸建て|株式会社東洋リーベスト
| 価格 | 7,770万円 ![]() |
||||
|---|---|---|---|---|---|
| 所在地 | 東京都調布市染地3丁目
この地域周辺の物件を見る |
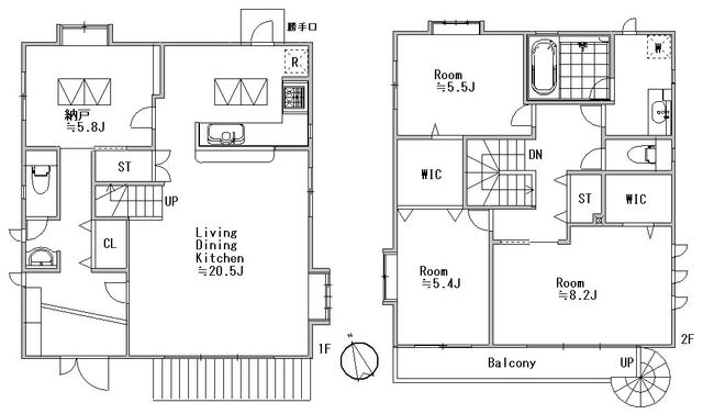
土地面積 | 147.71m² (44.68坪) | 建物面積 | 115.5u |
| 築年月 | 2004年12月築 | 間取り | 3SLDK (-) | ||
| 交通 |
京王線 国領 徒歩20分
京王線 調布 バス13分 染地三丁目 停歩1分 |
||||
| 特徴 |
|
|---|---|
| セールスコメント | 〜〜〜スタッフの口コミ〜〜〜 大成建設施工の災害に対して強い「絶強の家」です♪ 広大な屋上テラスからは調布花火大会が特等席で望めます♪ 都内では中々ない広いお庭で自分好みのガーデニングも可能♪ 是非、現地でご体感下さいませ♪ 〜〜〜ここに注目!〜〜〜 ・大成建設施工の注文住宅 ・RC造すべての災害に対して強い「絶強の家」 ・調布花火大会が鑑賞可能な広い屋上テラス ・晴れた日には富士山も鑑賞可能 ・植栽豊かな広々としたお庭 ・南面にお庭が望めるLDK20帖以上 ・1620サイズのユニットバス ・1階廊下に洗髪洗面化粧台あり ・シャッター付き駐車場 ・日商岩井(株)旧分譲地内の整った街並み ・南面公道5mの広い前面道路 ・道路先が公園の交通量の少ない道路 ・バス停まで徒歩1分 ・徒歩10分圏内に小中学校あり |
| 採光面 | 南西 | 構造/階数 | RC造/地上2階建 |
|---|---|---|---|
| 建ぺい率 | 40(%) | 容積率 | 80(%) |
| 駐車場 | - | 現況/引渡し | 空家/相談 |
| 土地権利 | 所有権 | 私道負担面積 | - |
| 接道状況 | 接道: 南西 8.4m 公道 道路幅: 5m | 用途地域 |
第一種低層住居専用地域
|
| セットバック | - | 法令上の制限 | - |
| 地目 | 宅地 | 地勢 | 平坦 |
| 建築確認番号 | 都市計画 | 市街化区域 | |
| 取引態様 | 一般媒介 | ||
| 情報更新日 | 2026年04月20日 | 次回更新日 | 2026年05月04日 |
| 小学校区 | 調布市立杉森小学校 (東京都調布市) この学区の他の物件を見る |
中学校区 | 第三中学校 (東京都調布市) この学区の他の物件を見る |
|---|
| 価格 | 万円 | ||
|---|---|---|---|
| 年利率 | % |
||
| ボーナス払い | 返済年数 | ||
| 頭金 | 直接入力する | 万円 | |

毎月のご返済額 |
ボーナス(×年2回) |
物件価格7,770万円 |
大成建設施工の災害に対して強い「絶強の家」です♪ 広大な屋上テラスからは調布花火大会が特等席で望めます♪ 都内では中々ない広いお庭で自分好みのガーデニングも可能♪ 是非、現地でご体感下さいませ♪