ルフォンプログレ蔵前プレミア 蔵前の1K賃貸マンション|ピタットハウス阿佐ヶ谷店

武蔵野市・三鷹市・杉並区の不動産なら東洋リーベスト(ピタットハウス武蔵境・ピタットハウス阿佐ヶ谷店)
TOPページ
賃貸物件検索
台東区の賃貸情報一覧
ルフォンプログレ蔵前プレミア 蔵前の1K賃貸マンション

NEW ルフォンプログレ蔵前プレミア 蔵前の1K賃貸マンション

  • 14万円
    15,000円
  • 敷金
    1ヶ月
    礼金
    1ヶ月
    保証金
    0ヶ月
    敷引・償却
    0ヶ月-
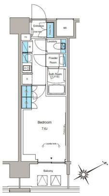
  • 間取り
    1K
    専有面積
    25.3m2
    築年月
    2022年1月 
    所在階・階数
    9階・14階
  • 所在地
    東京都台東区浅草橋3丁目  周辺MAP
  • 交通
    都営浅草線 「蔵前駅」 徒歩3分
    JR総武本線 「馬喰町駅」 徒歩12分
    JR総武線 「浅草橋駅」 徒歩7分
【建物外観】 外観 【間取】  【建物外観】 外観 【建物外観】 地形図・案内図 【建物外観】 エントランス 【建物外観】 共有部分
【建物外観】 外観
【間取】 
【建物外観】 外観
【建物外観】 地形図・案内図
【建物外観】 エントランス
【建物外観】 共有部分
  • 【建物外観】 外観
  • 【間取】 
  • 【建物外観】 外観
  • 【建物外観】 地形図・案内図
  • 【建物外観】 エントランス
  • 【建物外観】 共有部分

【スタッフからのイチオシポイント!】ルフォンプログレ蔵前プレミア

東京都台東区浅草橋3丁目【都営浅草線 蔵前駅徒歩3分】にある1K賃貸マンションです。
2022年1月築の14階建てのマンションで、お部屋は14階建ての9階部分です。
物件の広さは25.3m2で人気の1Kです。
※お部屋のもっと詳しい内容や入居時期、諸条件のご相談など、ホームページには掲載が間に合わず載せきれていない情報もございます。
気になることが御座いましたらお気軽にメールにてお問い合わせください。
0120-30-2285
ピタットハウス阿佐ヶ谷店
お問い合わせNO:RHS-GC3688403227

物件基本情報

所在地 東京都台東区浅草橋3丁目   周辺MAP
交通 都営浅草線 「蔵前駅」 徒歩3分
JR総武本線 「馬喰町駅」 徒歩12分
JR総武線 「浅草橋駅」 徒歩7分
種別 / 構造 マンション / RC造(鉄筋コンクリート造) 主要採光面 東南 所在階 / 階数 9階 / 14階
築年月 2022年1月  間取り 1K( - ) 専有面積 25.3m2

物件詳細情報

損保 更新料 あり 14万円 鍵交換代 -
駐車場 なし 近隣駐車場   契約期間
借家区分
2年 -
現況 居住中 入居可能日 2026年7月1日 取引態様 媒介
保証会社 その他 初回保証委託料(最低15,000円):月額賃料等の50%、 2年目以降:10,000円/年 仲介手数料 15.4万円 バイク置き場
その他費用
  • 鍵交換費:44000円 室内清掃費:44000円 口座振替事務手数料:220円/月

設備詳細情報

キッチン
  • システムキッチン
バス・トイレ
  • バストイレ別
  • 浴室乾燥機
  • 洗面所独立
  • 室内洗濯機置き場
住空間
  • バルコニー
  • 東南向き
  • フローリング
  • エアコン
設備・サービス
  • オートロック
  • エレベーター
  • 宅配ボックス
  • CS
  • BS
  • CATV
特 徴
条件・その他  ペット:可能
コメント
備 考 -

学区情報

小学校区
()
中学校区
()
情報更新日:2026年04月23日 次回更新予定日:2026年05月07日
※各種情報と差異がある場合は現況優先となります
※物件情報の学区情報について
当サイト物件情報に記載されております通学区域(学区)情報は、国土数値情報ダウンロードサービスが提供する小学校区データ【2021年度】及び中学校区データ【2021年度】を元に加工したものですので、記載情報が現在の学区域と異なる場合がございます。国土数値情報ダウンロードサービスのWEBサイト上で記述通り、データは必ずしも正確とは言えません。また、通学区域(学区)は毎年見直しの対象となりますので、そちらを踏まえ学区情報は参考としてご活用下さい。

こちらの物件の空室状況

間取図 部屋番号 賃料
共益費/管理費
敷金
礼金
間取り
専有面積
お気に入り 物件詳細
この賃貸物件の空室1008の間取り画像
1008
ピタットハウス阿佐ヶ谷店 14.1万円
15,000円 -
1ヶ月
1ヶ月
1K
25.38m2
お気に入り 詳細を見る
この賃貸物件の空室706の間取り画像
706
ピタットハウス武蔵境店 14.8万円
15,000円 -
1ヶ月
1ヶ月
1DK
27.87m2
お気に入り 詳細を見る
この賃貸物件の空室706の間取り画像
706
ピタットハウス阿佐ヶ谷店 14.8万円
15,000円 -
1ヶ月
1ヶ月
1DK
27.87m2
お気に入り 詳細を見る
この賃貸物件の空室709の間取り画像
709
ピタットハウス武蔵境店 14.8万円
15,000円 -
1ヶ月
1ヶ月
1DK
27.9m2
お気に入り 詳細を見る
この賃貸物件の空室903の間取り画像
903
ピタットハウス阿佐ヶ谷店 14万円
15,000円 -
1ヶ月
1ヶ月
1K
25.3m2
お気に入り 詳細を見る
0120-30-2285
ピタットハウス阿佐ヶ谷店
お問い合わせNO:RHS-GC3688403227

この物件に似た物件をチェック!


閲覧した物件の履歴

閲覧した物件の一覧を見る

最近検索した条件一覧



気になったら今すぐ!カンタンお問合せ



お問合せ内容必須
【備考欄】
希望条件・来店希望日・その他質問がございましたらご記入ください。
お客様情報
お名前必須
メールアドレス必須
電話番号



※ご入力いただいたお客さまの個人情報は、「個人情報の取扱いについて」に基づき適正に取り扱います。必ずお読みになり、同意の上お問い合わせください。




※ご記入いただいたメールアドレス宛てに、お問合せ内容の確認メールをお送りいたします。
※Yahoo!メールなどのフリーメールをご利用の場合、迷惑メールフォルダに入る場合があります。
 迷惑メールのフォルダ・設定等をご確認下さい。
 


▲ページのTOPへ戻る


お問合せはこちら

ピタットハウス阿佐ヶ谷店 0120-30-2285

新しい時代
賃貸管理で
理想の入居率を実現!

問い合わせアイコン問い合わせ

会社情報

東洋リーベスト本店
東洋リーベスト本店(管理部)
0422-30-8810
  • 営業時間

    10:00〜17:30

  • 定休日

    火曜日・水曜日

アクセス
東洋リーベスト本店
ピタットハウス武蔵境店
0120-72-3966
  • 営業時間

    10:00〜19:00

  • 定休日

    毎週火曜日 隔週水曜日
    冬期(1月〜3月は無休)

アクセス
東洋リーベスト阿佐ヶ谷店
東洋リーベスト阿佐ヶ谷店
0120-30-2285
  • 営業時間

    10:00〜19:00

  • 定休日

    火曜日 水曜日
    冬期(1月〜3月は無休)

アクセス