浜田山の2LDK賃貸マンション|ピタットハウス阿佐ヶ谷店

武蔵野市・三鷹市・杉並区の不動産なら東洋リーベスト(ピタットハウス武蔵境・ピタットハウス阿佐ヶ谷店)
TOPページ
賃貸物件検索
杉並区の賃貸情報一覧
浜田山の2LDK賃貸マンション

NEW  浜田山の2LDK賃貸マンション

  • 26万円
    10,000円
  • 敷金
    1ヶ月
    礼金
    1ヶ月
    保証金
    0ヶ月
    敷引・償却
    0ヶ月-
  • 間取り
    2LDK
    専有面積
    75.13m2
    築年月
    2008年12月 
    所在階・階数
    5階・5階
  • 所在地
    東京都杉並区高井戸東3丁目  周辺MAP
  • 交通
    京王井の頭線 「浜田山駅」 徒歩4分
    京王井の頭線 「高井戸駅」 徒歩17分
    京王井の頭線 「西永福駅」 徒歩15分
【建物外観】 外観 【間取】  【建物外観】 エントランス 【建物外観】 共有部分 【建物外観】 駐車場 【建物外観】 ロビー 【その他】 セキュリティ 【その他】 眺望
【建物外観】 外観
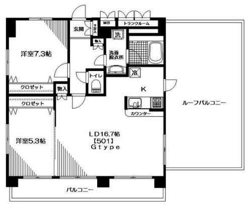
【間取】 
【建物外観】 エントランス
【建物外観】 共有部分
【建物外観】 駐車場
【建物外観】 ロビー
【その他】 セキュリティ
【その他】 眺望
  • 【建物外観】 外観
  • 【間取】 
  • 【建物外観】 エントランス
  • 【建物外観】 共有部分
  • 【建物外観】 駐車場
  • 【建物外観】 ロビー
  • 【その他】 セキュリティ
  • 【その他】 眺望

【スタッフからのイチオシポイント!】

他社掲載物件も一括手配!即日対応のLINEでご連絡下さい!<<LINEID:@050wbngh>>
東京都杉並区高井戸東3丁目【京王井の頭線 浜田山駅徒歩4分】にある2LDK賃貸マンションです。
2008年12月築の5階建てのマンションで、お部屋は5階建ての5階部分です。
物件の広さは75.13m2で人気の2LDKです。
※お部屋のもっと詳しい内容や入居時期、諸条件のご相談など、ホームページには掲載が間に合わず載せきれていない情報もございます。
気になることが御座いましたらお気軽にメールにてお問い合わせください。
0120-30-2285
ピタットハウス阿佐ヶ谷店
お問い合わせNO:RHS-GC48209851

物件基本情報

所在地 東京都杉並区高井戸東3丁目   周辺MAP
交通 京王井の頭線 「浜田山駅」 徒歩4分
京王井の頭線 「高井戸駅」 徒歩17分
京王井の頭線 「西永福駅」 徒歩15分
種別 / 構造 マンション / RC造(鉄筋コンクリート造) 主要採光面 所在階 / 階数 5階 / 5階
築年月 2008年12月  間取り 2LDK( 洋室7.3畳/洋室5.3畳/LDK16.7畳 ) 専有面積 75.13m2

物件詳細情報

損保 不要 更新料 あり 26万円 鍵交換代 -
駐車場 なし 近隣駐車場   契約期間
借家区分
2年 -
現況 居住中 入居可能日 2026年6月20日 取引態様 媒介
保証会社 その他 加入要 初回保証委託料月額合計の60%、1年毎に継続保証委託料1万円。 仲介手数料 28.6万円 バイク置き場
その他費用
  • 鍵交換費用:33000円 室内消毒代:16500円

設備詳細情報

キッチン
  • システムキッチン
  • 対面式キッチン
  • 3口以上コンロ
バス・トイレ
  • 給湯
  • バストイレ別
  • シャワー
  • 追焚機能浴室
  • 洗面所独立
  • 温水洗浄便座
  • 室内洗濯機置き場
住空間
  • 最上階
  • ルーフバルコニー
  • バルコニー
  • 南向き
  • エアコン
設備・サービス
  • クロゼット
  • 収納スペース
  • TVインターホン
  • オートロック
  • エレベーター
  • 宅配ボックス
  • 光ファイバー
  • CATV
  • ネット使用料不要
  • LAN
特 徴
条件・その他  ガス:都市
コメント 他社掲載物件も一括手配!即日対応のLINEでご連絡下さい!<<LINEID:@050wbngh>>
備 考 -

学区情報

小学校区
()
中学校区
()
情報更新日:2026年04月19日 次回更新予定日:2026年05月03日
※各種情報と差異がある場合は現況優先となります
※物件情報の学区情報について
当サイト物件情報に記載されております通学区域(学区)情報は、国土数値情報ダウンロードサービスが提供する小学校区データ【2021年度】及び中学校区データ【2021年度】を元に加工したものですので、記載情報が現在の学区域と異なる場合がございます。国土数値情報ダウンロードサービスのWEBサイト上で記述通り、データは必ずしも正確とは言えません。また、通学区域(学区)は毎年見直しの対象となりますので、そちらを踏まえ学区情報は参考としてご活用下さい。

こちらの物件の空室状況

間取図 部屋番号 賃料
共益費/管理費
敷金
礼金
間取り
専有面積
お気に入り 物件詳細
この賃貸物件の空室501の間取り画像
501
ピタットハウス阿佐ヶ谷店 26万円
10,000円 -
1ヶ月
1ヶ月
2LDK
75.13m2
お気に入り 詳細を見る
0120-30-2285
ピタットハウス阿佐ヶ谷店
お問い合わせNO:RHS-GC48209851

この物件に似た物件をチェック!


閲覧した物件の履歴

閲覧した物件の一覧を見る

最近検索した条件一覧



気になったら今すぐ!カンタンお問合せ



お問合せ内容必須
【備考欄】
希望条件・来店希望日・その他質問がございましたらご記入ください。
お客様情報
お名前必須
メールアドレス必須
電話番号



※ご入力いただいたお客さまの個人情報は、「個人情報の取扱いについて」に基づき適正に取り扱います。必ずお読みになり、同意の上お問い合わせください。




※ご記入いただいたメールアドレス宛てに、お問合せ内容の確認メールをお送りいたします。
※Yahoo!メールなどのフリーメールをご利用の場合、迷惑メールフォルダに入る場合があります。
 迷惑メールのフォルダ・設定等をご確認下さい。
 


▲ページのTOPへ戻る


お問合せはこちら

ピタットハウス阿佐ヶ谷店 0120-30-2285

新しい時代
賃貸管理で
理想の入居率を実現!

問い合わせアイコン問い合わせ

会社情報

東洋リーベスト本店
東洋リーベスト本店(管理部)
0422-30-8810
  • 営業時間

    10:00〜17:30

  • 定休日

    火曜日・水曜日

アクセス
東洋リーベスト本店
ピタットハウス武蔵境店
0120-72-3966
  • 営業時間

    10:00〜19:00

  • 定休日

    毎週火曜日 隔週水曜日
    冬期(1月〜3月は無休)

アクセス
東洋リーベスト阿佐ヶ谷店
東洋リーベスト阿佐ヶ谷店
0120-30-2285
  • 営業時間

    10:00〜19:00

  • 定休日

    火曜日 水曜日
    冬期(1月〜3月は無休)

アクセス