ワンルーフレジデンス板橋大山 板橋区役所前の1DK賃貸マンション|ピタットハウス阿佐ヶ谷店

武蔵野市・三鷹市・杉並区の不動産なら東洋リーベスト(ピタットハウス武蔵境・ピタットハウス阿佐ヶ谷店)
TOPページ
賃貸物件検索
板橋区の賃貸情報一覧
ワンルーフレジデンス板橋大山 板橋区役所前の1DK賃貸マンション

NEW ワンルーフレジデンス板橋大山 板橋区役所前の1DK賃貸マンション

  • 12.3万円
    12,000円
  • 敷金
    1ヶ月
    礼金
    0ヶ月
    保証金
    0ヶ月
    敷引・償却
    0ヶ月-
  • 間取り
    1DK
    専有面積
    25.18m2
    築年月
    2023年12月 
    所在階・階数
    7階・12階
  • 所在地
    東京都板橋区大山東町  周辺MAP
  • 交通
    都営三田線 「板橋区役所前駅」 徒歩5分
    東武東上線 「下板橋駅」 徒歩10分
    東武東上線 「大山駅」 徒歩7分
【建物外観】 外観 【間取】  【建物外観】 外観 【建物外観】 地形図・案内図
【建物外観】 外観
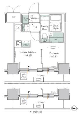
【間取】 
【建物外観】 外観
【建物外観】 地形図・案内図
  • 【建物外観】 外観
  • 【間取】 
  • 【建物外観】 外観
  • 【建物外観】 地形図・案内図

【スタッフからのイチオシポイント!】ワンルーフレジデンス板橋大山

東京都板橋区大山東町【都営三田線 板橋区役所前駅徒歩5分】にある1DK賃貸マンションです。
2023年12月築の12階建てのマンションで、お部屋は12階建ての7階部分です。
物件の広さは25.18m2で人気の1DKです。
※お部屋のもっと詳しい内容や入居時期、諸条件のご相談など、ホームページには掲載が間に合わず載せきれていない情報もございます。
気になることが御座いましたらお気軽にメールにてお問い合わせください。
0120-30-2285
ピタットハウス阿佐ヶ谷店
お問い合わせNO:RHS-GC4324282140

物件基本情報

所在地 東京都板橋区大山東町   周辺MAP
交通 都営三田線 「板橋区役所前駅」 徒歩5分
東武東上線 「下板橋駅」 徒歩10分
東武東上線 「大山駅」 徒歩7分
種別 / 構造 マンション / RC造(鉄筋コンクリート造) 主要採光面 所在階 / 階数 7階 / 12階
築年月 2023年12月  間取り 1DK( - ) 専有面積 25.18m2

物件詳細情報

損保 更新料 なし 鍵交換代 -
駐車場 なし 近隣駐車場   契約期間
借家区分
2年 定期借家
現況 居住中 入居可能日 2026年5月20日 取引態様 媒介
保証会社 その他 初回保証委託料(最低15,000円):月額賃料等の50%、 2年目以降:10,000円/年 仲介手数料 13.53万円 バイク置き場
その他費用
  • 室内清掃費:44000円 鍵交換費:22000円 口座振替事務手数料:220円/月

設備詳細情報

キッチン
  • システムキッチン
バス・トイレ
  • バストイレ別
  • 浴室乾燥機
  • 洗面所独立
  • 室内洗濯機置き場
住空間
  • バルコニー
  • フローリング
  • エアコン
設備・サービス
  • オートロック
  • エレベーター
  • 宅配ボックス
  • CS
  • BS
特 徴
条件・その他  フリーレント:1ヶ月あり
コメント
備 考 -

学区情報

小学校区
()
中学校区
()
情報更新日:2026年04月19日 次回更新予定日:2026年05月03日
※各種情報と差異がある場合は現況優先となります
※物件情報の学区情報について
当サイト物件情報に記載されております通学区域(学区)情報は、国土数値情報ダウンロードサービスが提供する小学校区データ【2021年度】及び中学校区データ【2021年度】を元に加工したものですので、記載情報が現在の学区域と異なる場合がございます。国土数値情報ダウンロードサービスのWEBサイト上で記述通り、データは必ずしも正確とは言えません。また、通学区域(学区)は毎年見直しの対象となりますので、そちらを踏まえ学区情報は参考としてご活用下さい。

こちらの物件の空室状況

間取図 部屋番号 賃料
共益費/管理費
敷金
礼金
間取り
専有面積
お気に入り 物件詳細
この賃貸物件の空室302の間取り画像
302
ピタットハウス武蔵境店 12.1万円
12,000円 -
1ヶ月
0ヶ月
1DK
25.61m2
お気に入り 詳細を見る
この賃貸物件の空室302の間取り画像
302
ピタットハウス阿佐ヶ谷店 12.1万円
12,000円 -
1ヶ月
0ヶ月
1DK
25.61m2
お気に入り 詳細を見る
この賃貸物件の空室504の間取り画像
504
ピタットハウス阿佐ヶ谷店 12.1万円
12,000円 -
1ヶ月
0ヶ月
1DK
25.39m2
お気に入り 詳細を見る
この賃貸物件の空室603の間取り画像
603
ピタットハウス武蔵境店 12.1万円
12,000円 -
1ヶ月
0ヶ月
1DK
25.23m2
お気に入り 詳細を見る
この賃貸物件の空室603の間取り画像
603
ピタットハウス阿佐ヶ谷店 12.1万円
12,000円 -
1ヶ月
0ヶ月
1DK
25.23m2
お気に入り 詳細を見る
この賃貸物件の空室705の間取り画像
705
ピタットハウス阿佐ヶ谷店 12.3万円
12,000円 -
1ヶ月
0ヶ月
1DK
25.18m2
お気に入り 詳細を見る
0120-30-2285
ピタットハウス阿佐ヶ谷店
お問い合わせNO:RHS-GC4324282140

この物件に似た物件をチェック!


閲覧した物件の履歴

閲覧した物件の一覧を見る

最近検索した条件一覧



気になったら今すぐ!カンタンお問合せ



お問合せ内容必須
【備考欄】
希望条件・来店希望日・その他質問がございましたらご記入ください。
お客様情報
お名前必須
メールアドレス必須
電話番号



※ご入力いただいたお客さまの個人情報は、「個人情報の取扱いについて」に基づき適正に取り扱います。必ずお読みになり、同意の上お問い合わせください。




※ご記入いただいたメールアドレス宛てに、お問合せ内容の確認メールをお送りいたします。
※Yahoo!メールなどのフリーメールをご利用の場合、迷惑メールフォルダに入る場合があります。
 迷惑メールのフォルダ・設定等をご確認下さい。
 


▲ページのTOPへ戻る


お問合せはこちら

ピタットハウス阿佐ヶ谷店 0120-30-2285

新しい時代
賃貸管理で
理想の入居率を実現!

問い合わせアイコン問い合わせ

会社情報

東洋リーベスト本店
東洋リーベスト本店(管理部)
0422-30-8810
  • 営業時間

    10:00〜17:30

  • 定休日

    火曜日・水曜日

アクセス
東洋リーベスト本店
ピタットハウス武蔵境店
0120-72-3966
  • 営業時間

    10:00〜19:00

  • 定休日

    毎週火曜日 隔週水曜日
    冬期(1月〜3月は無休)

アクセス
東洋リーベスト阿佐ヶ谷店
東洋リーベスト阿佐ヶ谷店
0120-30-2285
  • 営業時間

    10:00〜19:00

  • 定休日

    火曜日 水曜日
    冬期(1月〜3月は無休)

アクセス