サニーサイド V 中河原の2LDK賃貸テラスハウス|ピタットハウス阿佐ヶ谷店

武蔵野市・三鷹市・杉並区の不動産なら東洋リーベスト(ピタットハウス武蔵境・ピタットハウス阿佐ヶ谷店)
TOPページ
賃貸物件検索
府中市の賃貸情報一覧
サニーサイド V 中河原の2LDK賃貸テラスハウス

サニーサイド V 中河原の2LDK賃貸テラスハウス

  • 14万円
    5,000円
  • 敷金
    0ヶ月
    礼金
    18万円
    保証金
    0ヶ月
    敷引・償却
    0ヶ月-
  • 間取り
    2LDK
    専有面積
    70.32m2
    築年月
    2004年9月 
    所在階・階数
    1階・2階
  • 所在地
    東京都府中市日新町2丁目  周辺MAP
  • 交通
    京王線 「中河原駅」 徒歩18分
    JR南武線 「谷保駅」 徒歩20分
【建物外観】 外観 【間取】  【建物外観】 その他 【その他】 LDK 【その他】 キッチン 【その他】 お風呂 【その他】 ワークスペース 【その他】 洗面所 【その他】 温水洗浄便座付のトイレ 【その他】 収納 【その他】 玄関 【その他】 バルコニー 【その他】 上部収納 【その他】 洋室
【建物外観】 外観
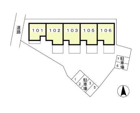
【間取】 
【建物外観】 その他
【その他】 LDK
【その他】 キッチン
【その他】 お風呂
【その他】 ワークスペース
【その他】 洗面所
【その他】 温水洗浄便座付のトイレ
【その他】 収納
【その他】 玄関
【その他】 バルコニー
【その他】 上部収納
【その他】 洋室
  • 【建物外観】 外観
  • 【間取】 
  • 【建物外観】 その他
  • 【その他】 LDK
  • 【その他】 キッチン
  • 【その他】 お風呂
  • 【その他】 ワークスペース
  • 【その他】 洗面所
  • 【その他】 温水洗浄便座付のトイレ
  • 【その他】 収納
  • 【その他】 玄関
  • 【その他】 バルコニー
  • 【その他】 上部収納
  • 【その他】 洋室

【スタッフからのイチオシポイント!】サニーサイド V

インターネット無料です!(工事後使用可) 大和ハウス施工☆2階にテレワークスペース有ります!その他設備色々☆ぜひ一度内覧をお願いします♪D-roomで新生活を始めましょう*ヾ(^o^)ノ☆
東京都府中市日新町2丁目【京王線 中河原駅徒歩18分】にある2LDK賃貸テラスハウスです。
2004年9月築の2階建てのテラスハウスで、お部屋は2階建ての1階部分です。
物件の広さは70.32m2で人気の2LDKです。
※お部屋のもっと詳しい内容や入居時期、諸条件のご相談など、ホームページには掲載が間に合わず載せきれていない情報もございます。
気になることが御座いましたらお気軽にメールにてお問い合わせください。
0120-30-2285
ピタットハウス阿佐ヶ谷店
お問い合わせNO:RHS-GC39942624

物件基本情報

所在地 東京都府中市日新町2丁目   周辺MAP
交通 京王線 「中河原駅」 徒歩18分
JR南武線 「谷保駅」 徒歩20分
種別 / 構造 テラスハウス / 軽量鉄骨造 主要採光面 - 所在階 / 階数 1階 / 2階
築年月 2004年9月  間取り 2LDK( - ) 専有面積 70.32m2

物件詳細情報

損保 更新料 あり 14万円 鍵交換代 -
駐車場 あり8,800円 近隣駐車場   契約期間
借家区分
2年 -
現況 居住中 入居可能日 2026年5月10日 取引態様 媒介
保証会社 仲介手数料 15.4万円 バイク置き場
その他費用
  • ルームクリーニング料金:82500円

設備詳細情報

キッチン
  • 対面式キッチン
バス・トイレ
  • バストイレ別
  • シャワー
  • 追焚機能浴室
  • 浴室乾燥機
  • シャワー付洗面台
  • 洗面化粧台
  • 室内洗濯機置き場
住空間
  • 角部屋
  • 専用庭
  • フローリング
  • エアコン
設備・サービス
  • クロゼット
  • シューズボックス
  • 収納スペース
  • TVインターホン
  • 宅配ボックス
  • BS
  • CATV
  • LAN
特 徴
条件・その他  ガス:都市
コメント インターネット無料です!(工事後使用可) 大和ハウス施工☆2階にテレワークスペース有ります!その他設備色々☆ぜひ一度内覧をお願いします♪D-roomで新生活を始めましょう*ヾ(^o^)ノ☆
備 考 機関保証加入必須。 機関保証料は月額賃料等総額の3.4%+800円/月(その他商品あり) 本貸室の電気は、貸主から配給されます。

学区情報

小学校区
()
中学校区
()
情報更新日:2026年04月14日 次回更新予定日:2026年04月28日
※各種情報と差異がある場合は現況優先となります
※物件情報の学区情報について
当サイト物件情報に記載されております通学区域(学区)情報は、国土数値情報ダウンロードサービスが提供する小学校区データ【2021年度】及び中学校区データ【2021年度】を元に加工したものですので、記載情報が現在の学区域と異なる場合がございます。国土数値情報ダウンロードサービスのWEBサイト上で記述通り、データは必ずしも正確とは言えません。また、通学区域(学区)は毎年見直しの対象となりますので、そちらを踏まえ学区情報は参考としてご活用下さい。

こちらの物件の空室状況

間取図 部屋番号 賃料
共益費/管理費
敷金
礼金
間取り
専有面積
お気に入り 物件詳細
この賃貸物件の空室101の間取り画像
101
ピタットハウス阿佐ヶ谷店 14万円
5,000円 -
0ヶ月
18万円
2LDK
70.32m2
お気に入り 詳細を見る
この賃貸物件の空室101の間取り画像
101
ピタットハウス武蔵境店 14万円
5,000円 -
0ヶ月
18万円
2LDK
70.32m2
お気に入り 詳細を見る
0120-30-2285
ピタットハウス阿佐ヶ谷店
お問い合わせNO:RHS-GC39942624

この物件に似た物件をチェック!


閲覧した物件の履歴

閲覧した物件の一覧を見る

最近検索した条件一覧



気になったら今すぐ!カンタンお問合せ



お問合せ内容必須
【備考欄】
希望条件・来店希望日・その他質問がございましたらご記入ください。
お客様情報
お名前必須
メールアドレス必須
電話番号



※ご入力いただいたお客さまの個人情報は、「個人情報の取扱いについて」に基づき適正に取り扱います。必ずお読みになり、同意の上お問い合わせください。




※ご記入いただいたメールアドレス宛てに、お問合せ内容の確認メールをお送りいたします。
※Yahoo!メールなどのフリーメールをご利用の場合、迷惑メールフォルダに入る場合があります。
 迷惑メールのフォルダ・設定等をご確認下さい。
 


▲ページのTOPへ戻る


お問合せはこちら

ピタットハウス阿佐ヶ谷店 0120-30-2285

新しい時代
賃貸管理で
理想の入居率を実現!

問い合わせアイコン問い合わせ

会社情報

東洋リーベスト本店
東洋リーベスト本店(管理部)
0422-30-8810
  • 営業時間

    10:00〜17:30

  • 定休日

    火曜日・水曜日

アクセス
東洋リーベスト本店
ピタットハウス武蔵境店
0120-72-3966
  • 営業時間

    10:00〜19:00

  • 定休日

    毎週火曜日 隔週水曜日
    冬期(1月〜3月は無休)

アクセス
東洋リーベスト阿佐ヶ谷店
東洋リーベスト阿佐ヶ谷店
0120-30-2285
  • 営業時間

    10:00〜19:00

  • 定休日

    火曜日 水曜日
    冬期(1月〜3月は無休)

アクセス