パークアクシス新板橋イースト 板橋の1K賃貸マンション|ピタットハウス阿佐ヶ谷店

武蔵野市・三鷹市・杉並区の不動産なら東洋リーベスト(ピタットハウス武蔵境・ピタットハウス阿佐ヶ谷店)
TOPページ
賃貸物件検索
板橋区の賃貸情報一覧
パークアクシス新板橋イースト 板橋の1K賃貸マンション

NEW パークアクシス新板橋イースト 板橋の1K賃貸マンション

  • 10.4万円
    5,000円
  • 敷金
    1ヶ月
    礼金
    1ヶ月
    保証金
    0ヶ月
    敷引・償却
    0ヶ月-
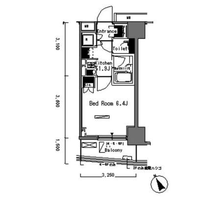
  • 間取り
    1K
    専有面積
    21.34m2
    築年月
    2007年2月 
    所在階・階数
    8階・14階
  • 所在地
    東京都板橋区板橋4丁目  周辺MAP
  • 交通
    JR埼京線 「板橋駅」 徒歩9分
    都営三田線 「新板橋駅」 徒歩2分
    都営三田線 「西巣鴨駅」 徒歩11分
【建物外観】 外観 【間取】  【建物外観】 外観 【建物外観】 地形図・案内図 【建物外観】 その他 【建物外観】 エントランス
【建物外観】 外観
【間取】 
【建物外観】 外観
【建物外観】 地形図・案内図
【建物外観】 その他
【建物外観】 エントランス
  • 【建物外観】 外観
  • 【間取】 
  • 【建物外観】 外観
  • 【建物外観】 地形図・案内図
  • 【建物外観】 その他
  • 【建物外観】 エントランス

【スタッフからのイチオシポイント!】パークアクシス新板橋イースト

東京都板橋区板橋4丁目【JR埼京線 板橋駅徒歩9分】にある1K賃貸マンションです。
2007年2月築の14階建てのマンションで、お部屋は14階建ての8階部分です。
物件の広さは21.34m2で人気の1Kです。
※お部屋のもっと詳しい内容や入居時期、諸条件のご相談など、ホームページには掲載が間に合わず載せきれていない情報もございます。
気になることが御座いましたらお気軽にメールにてお問い合わせください。
0120-30-2285
ピタットハウス阿佐ヶ谷店
お問い合わせNO:RHS-GC357095664

物件基本情報

所在地 東京都板橋区板橋4丁目   周辺MAP
交通 JR埼京線 「板橋駅」 徒歩9分
都営三田線 「新板橋駅」 徒歩2分
都営三田線 「西巣鴨駅」 徒歩11分
種別 / 構造 マンション / RC造(鉄筋コンクリート造) 主要採光面 所在階 / 階数 8階 / 14階
築年月 2007年2月  間取り 1K( - ) 専有面積 21.34m2

物件詳細情報

損保 更新料 あり 10.4万円 鍵交換代 -
駐車場 なし 近隣駐車場   契約期間
借家区分
2年 -
現況 居住中 入居可能日 2026年4月30日 取引態様 媒介
保証会社 その他 初回保証委託料(最低20,000円):月額賃料等の50%、 2年目以降:9,600円/年 仲介手数料 11.44万円 バイク置き場
その他費用
  • 室内清掃費:55000円 鍵交換費:16500円 口座振替事務手数料:220円/月

設備詳細情報

キッチン
  • システムキッチン
バス・トイレ
  • バストイレ別
  • 浴室乾燥機
  • 室内洗濯機置き場
住空間
  • バルコニー
  • 南向き
  • フローリング
  • エアコン
設備・サービス
  • オートロック
  • エレベーター
  • 宅配ボックス
  • CS
  • BS
  • CATV
  • LAN
特 徴
条件・その他  ペット:可能
コメント
備 考 -

学区情報

小学校区
()
中学校区
()
情報更新日:2026年04月19日 次回更新予定日:2026年05月03日
※各種情報と差異がある場合は現況優先となります
※物件情報の学区情報について
当サイト物件情報に記載されております通学区域(学区)情報は、国土数値情報ダウンロードサービスが提供する小学校区データ【2021年度】及び中学校区データ【2021年度】を元に加工したものですので、記載情報が現在の学区域と異なる場合がございます。国土数値情報ダウンロードサービスのWEBサイト上で記述通り、データは必ずしも正確とは言えません。また、通学区域(学区)は毎年見直しの対象となりますので、そちらを踏まえ学区情報は参考としてご活用下さい。

こちらの物件の空室状況

間取図 部屋番号 賃料
共益費/管理費
敷金
礼金
間取り
専有面積
お気に入り 物件詳細
この賃貸物件の空室1004の間取り画像
1004
ピタットハウス武蔵境店 19.9万円
10,000円 -
1ヶ月
1ヶ月
2DK
45.47m2
お気に入り 詳細を見る
この賃貸物件の空室806の間取り画像
806
ピタットハウス阿佐ヶ谷店 10.4万円
5,000円 -
1ヶ月
1ヶ月
1K
21.34m2
お気に入り 詳細を見る
この賃貸物件の空室906の間取り画像
906
ピタットハウス武蔵境店 10.4万円
5,000円 -
1ヶ月
1ヶ月
1K
21.34m2
お気に入り 詳細を見る
0120-30-2285
ピタットハウス阿佐ヶ谷店
お問い合わせNO:RHS-GC357095664

この物件に似た物件をチェック!


閲覧した物件の履歴

閲覧した物件の一覧を見る

最近検索した条件一覧



気になったら今すぐ!カンタンお問合せ



お問合せ内容必須
【備考欄】
希望条件・来店希望日・その他質問がございましたらご記入ください。
お客様情報
お名前必須
メールアドレス必須
電話番号



※ご入力いただいたお客さまの個人情報は、「個人情報の取扱いについて」に基づき適正に取り扱います。必ずお読みになり、同意の上お問い合わせください。




※ご記入いただいたメールアドレス宛てに、お問合せ内容の確認メールをお送りいたします。
※Yahoo!メールなどのフリーメールをご利用の場合、迷惑メールフォルダに入る場合があります。
 迷惑メールのフォルダ・設定等をご確認下さい。
 


▲ページのTOPへ戻る


お問合せはこちら

ピタットハウス阿佐ヶ谷店 0120-30-2285

新しい時代
賃貸管理で
理想の入居率を実現!

問い合わせアイコン問い合わせ

会社情報

東洋リーベスト本店
東洋リーベスト本店(管理部)
0422-30-8810
  • 営業時間

    10:00〜17:30

  • 定休日

    火曜日・水曜日

アクセス
東洋リーベスト本店
ピタットハウス武蔵境店
0120-72-3966
  • 営業時間

    10:00〜19:00

  • 定休日

    毎週火曜日 隔週水曜日
    冬期(1月〜3月は無休)

アクセス
東洋リーベスト阿佐ヶ谷店
東洋リーベスト阿佐ヶ谷店
0120-30-2285
  • 営業時間

    10:00〜19:00

  • 定休日

    火曜日 水曜日
    冬期(1月〜3月は無休)

アクセス