築浅戸建 貫井南町2丁目 東京都小金井市貫井南町2丁目|4,840万円の中古一戸建て|株式会社東洋リーベスト
| 価格 | 4,840万円 ![]() |
||||
|---|---|---|---|---|---|
| 所在地 | 東京都小金井市貫井南町2丁目
この地域周辺の物件を見る |
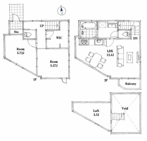
土地面積 | 79.44m² (24.03坪) | 建物面積 | 61.7u |
| 築年月 | 2023年6月築 | 間取り | 2LDK (洋室5.7/洋室5.2/LDK12.4/その他3.5) | ||
| 交通 |
JR中央本線 武蔵小金井 徒歩14分
JR中央本線 国分寺 徒歩25分 |
||||
| 特徴 |
|
|---|---|
| セールスコメント | 〜〜〜スタッフの口コミ〜〜〜 小中学校やスーパー、ドラッグストアなどが徒歩圏内にあり、住みやすい住環境です。 2階のリビングは開放的で気持ちよくお住まいになって頂けます。 また、中央線だけでなく、京王線や西武多摩川線にもアクセスがしやすくお出かけもしやすいのが魅力的です。 〜〜ここに注目!〜〜 ・開放的な2階リビング ・大型のWICでお部屋をスッキリと使える ・駐車スペース1台分あり ・ハウスクリーニング済みで入居前のお掃除が楽 ・エアコン2基付属(LDK、洋室) ・床暖房付き ・食洗器付き ・浄水器付き ・南側通路の為日当たり良好 ・2023年築の築浅戸建 ・緑豊かな環境 ・閑静な住宅街 |
| 採光面 | 南 | 構造/階数 | 木造/地上2階建 |
|---|---|---|---|
| 建ぺい率 | 50(%) | 容積率 | 80(%) |
| 駐車場 | 有 | 現況/引渡し | 空家/即時 |
| 土地権利 | 所有権 | 私道負担面積 | あり 1.78m² |
| 接道状況 | 接道: 北 公道 道路幅: 3.3m | 用途地域 |
第一種低層住居専用地域
|
| セットバック | なし | 法令上の制限 | - |
| 地目 | 宅地 | 地勢 | 平坦 |
| 建築確認番号 | 0 | 都市計画 | 市街化区域 |
| 取引態様 | 一般媒介 | ||
| 情報更新日 | 2026年04月27日 | 次回更新日 | 2026年05月11日 |
| 小学校区 | 小金井市立前原小学校 (東京都小金井市) この学区の他の物件を見る |
中学校区 | 南中学校 (東京都小金井市) この学区の他の物件を見る |
|---|
| 価格 | 万円 | ||
|---|---|---|---|
| 年利率 | % |
||
| ボーナス払い | 返済年数 | ||
| 頭金 | 直接入力する | 万円 | |

毎月のご返済額 |
ボーナス(×年2回) |
物件価格4,840万円 |
プライバシーをしっかりと守りつつ、開放的なリビングで生活を送れるお家です。物件の周辺は子育て世代のご家族が多く、住環境が良いです。住民の方しか通らない道路に面しているので車通りが少なく安心できます!