東大和市向原2丁目二世帯住宅 東京都東大和市向原2丁目|8,800万円の中古一戸建て|株式会社東洋リーベスト
| 価格 | 8,800万円 ![]() |
||||
|---|---|---|---|---|---|
| 所在地 | 東京都東大和市向原2丁目
この地域周辺の物件を見る |
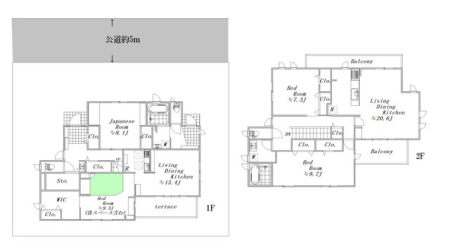
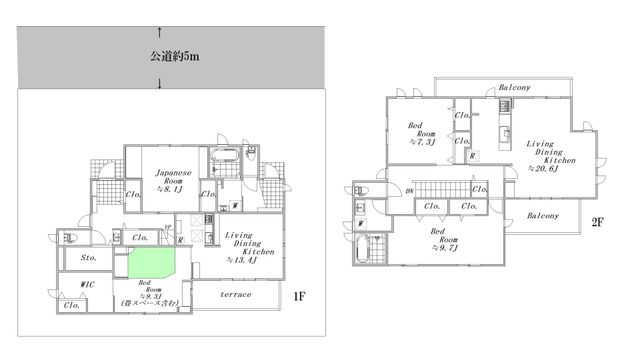
土地面積 | 200.79m² (60.73坪) | 建物面積 | 185.13u |
| 築年月 | 2017年5月築 | 間取り | 4SLDK (-) | ||
| 交通 |
西武拝島線 東大和市 徒歩17分
多摩都市モノレール 上北台 バス30分 仲原四丁目 停歩5分 |
||||
| 特徴 |
|
|---|---|
| セールスコメント | 〜〜〜スタッフの口コミ〜〜〜 大和ハウス工業(株)の注文住宅!! 建物がしっかりしているのはもちろん、室内とてもきれいにお使いで、収納が多いのもポイントです! 収納が多いのでお部屋をきれいに保てます♪ 〜〜〜ここに注目!〜〜〜 ・きれいな室内 ・徒歩30秒の所に遊具のある公園 ・二世帯住宅 ・賃貸併用住宅としても検討可能(1階部分想定賃料月9万円) ・全居室7帖以上 ・広いリビング ・大和ハウス工業の注文住宅 ・ウォークインクローゼット ・収納豊富 ・近くにスーパー・薬局 ・広いバルコニー ・カースペース2台分 |
| 採光面 | 北西 | 構造/階数 | S造/地上2階建 |
|---|---|---|---|
| 建ぺい率 | 50(%) | 容積率 | 100(%) |
| 駐車場 | - | 現況/引渡し | 居住中/相談 |
| 土地権利 | 所有権 | 私道負担面積 | - |
| 接道状況 | 接道: 北西 公道 道路幅: 5m | 用途地域 |
第一種低層住居専用地域
|
| セットバック | - | 法令上の制限 | - |
| 地目 | - | 地勢 | |
| 建築確認番号 | 都市計画 | 市街化区域 | |
| 取引態様 | 一般媒介 | ||
| 情報更新日 | 2026年05月10日 | 次回更新日 | 2026年05月24日 |
| 小学校区 | 東大和市立第五小学校 (東京都東大和市) この学区の他の物件を見る |
中学校区 | 第三中学校 (東京都東大和市) この学区の他の物件を見る |
|---|
| 価格 | 万円 | ||
|---|---|---|---|
| 年利率 | % |
||
| ボーナス払い | 返済年数 | ||
| 頭金 | 直接入力する | 万円 | |

毎月のご返済額 |
ボーナス(×年2回) |
物件価格8,800万円 |
大和ハウス工業(株)の注文住宅!! 建物がしっかりしているのはもちろん、室内とてもきれいにお使いで、収納が多いのもポイントです! 収納が多いのでお部屋をきれいに保てます♪