三鷹市下連雀4丁目戸建 東京都三鷹市下連雀4丁目|16,500万円の中古一戸建て|株式会社東洋リーベスト
| 価格 | 16,500万円 ![]() |
||||
|---|---|---|---|---|---|
| 所在地 | 東京都三鷹市下連雀4丁目
この地域周辺の物件を見る |
土地面積 | 146.18m² (44.21坪) | 建物面積 | 139.09u |
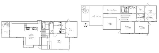
| 築年月 | 2010年4月築 | 間取り | 5SLDK (-) | ||
| 交通 |
JR中央本線 三鷹 徒歩10分
JR中央本線 吉祥寺 徒歩25分 |
||||
| 特徴 |
|
|---|---|
| セールスコメント | 〜〜〜スタッフの口コミ〜〜〜 新規リフォーム済みの広々としたデザイナーズ住宅です♪ 開放感のある吹抜けや全室南向きで日当たり◎ 近くには四季を感じられる井の頭公園や風の散歩道などがあり 散策にも気持ちの良いエリアです♪ 〜〜〜ここに注目!〜〜〜 ・中央線「三鷹駅」徒歩10分 ・新規リフォーム済み ・全居室南向きで日当たり良好 ・吹抜け付き19.1帖LDK ・各居室広々とした5LDK ・1階2階の各階に浴室と脱衣所あり ・収納スペース豊富なカウンターキッチン ・広々としたルーフテラス付き ・小学校徒歩10分 ・駐車場スペースあり |
| 採光面 | 西 | 構造/階数 | 木造/地上2階建 |
|---|---|---|---|
| 建ぺい率 | 60(%) | 容積率 | 200(%) |
| 駐車場 | - | 現況/引渡し | 空家/相談 |
| 土地権利 | 所有権 | 私道負担面積 | - |
| 接道状況 | 接道: 西 公道 道路幅: 5m | 用途地域 |
第一種住居地域
|
| セットバック | - | 法令上の制限 | - |
| 地目 | 宅地 | 地勢 | |
| 建築確認番号 | 都市計画 | 市街化区域 | |
| 取引態様 | 仲介 | ||
| 情報更新日 | 2026年03月09日 | 次回更新日 | 2026年03月23日 |
| 小学校区 | 三鷹市立第四小学校 (東京都三鷹市) この学区の他の物件を見る |
中学校区 | 第一中学校 (東京都三鷹市) この学区の他の物件を見る |
|---|
| 価格 | 万円 | ||
|---|---|---|---|
| 年利率 | % |
||
| ボーナス払い | 返済年数 | ||
| 頭金 | 直接入力する | 万円 | |

毎月のご返済額 |
ボーナス(×年2回) |
物件価格16,500万円 |
新規リフォーム済みの広々としたデザイナーズ住宅です♪ 開放感のある吹抜けや全室南向きで日当たり◎ 近くには四季を感じられる井の頭公園や風の散歩道などがあり 散策にも気持ちの良いエリアです♪