杉並区下井草1丁目新築戸建て 東京都杉並区下井草1丁目|9,490万円の中古一戸建て|株式会社東洋リーベスト
| 価格 | 9,490万円 ![]() |
||||
|---|---|---|---|---|---|
| 所在地 | 東京都杉並区下井草1丁目
この地域周辺の物件を見る |
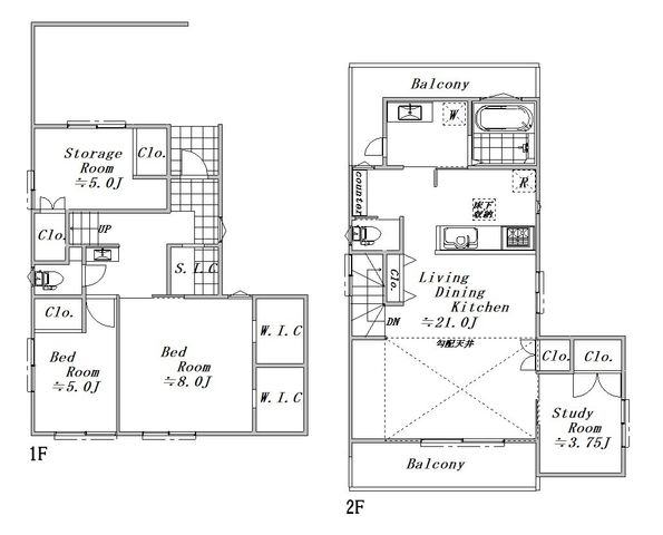
土地面積 | 109.11m² (33坪) | 建物面積 | 117.71u |
| 築年月 | 2026年1月築 | 間取り | 3SLDK (-) | ||
| 交通 |
西武新宿線 鷺ノ宮 徒歩14分
JR中央本線 阿佐ケ谷 徒歩16分 |
||||
| 特徴 |
|
|---|---|
| セールスコメント | 〜〜〜スタッフの口コミ〜〜〜 閑静な住宅街に注文住宅を思わせる住宅が登場♪ 毎日の開閉も楽々な全居室電動シャッター付き シューズインクローゼットやウォークインクローゼットなど 収納力が豊富なので居住スペースを広く活用できます 〜〜〜ここに注目!〜〜〜 ・中央線総武線「阿佐ヶ谷駅」徒歩16分 ・西武新宿線「鷺ノ宮駅」徒歩14分 ・21帖の広々LDK ・全居室収納付き ・ウォークインクローゼット2ヶ所 ・シューズインクローゼット ・食洗器付き対面カウンターシステムキッチン ・浴室乾燥機付1坪ユニットバス ・シャンプードレッサー付洗面化粧台 ・断熱性能の高い全居室ペアガラス採用 ・全居室電動シャッター付き ・閑静な住宅街 |
| 採光面 | 南 | 構造/階数 | 木造/地上2階建 |
|---|---|---|---|
| 建ぺい率 | 50(%) | 容積率 | 100(%) |
| 駐車場 | - | 現況/引渡し | 空家/相談 |
| 土地権利 | 所有権 | 私道負担面積 | - |
| 接道状況 | 接道: 東 私道 道路幅: 4m | 用途地域 |
第一種低層住居専用地域
|
| セットバック | - | 法令上の制限 | - |
| 地目 | - | 地勢 | |
| 建築確認番号 | 都市計画 | 市街化区域 | |
| 取引態様 | 仲介 | ||
| 情報更新日 | 2026年03月09日 | 次回更新日 | 2026年03月23日 |
| 小学校区 | 杉並区立杉並第九小学校 (東京都杉並区) この学区の他の物件を見る |
中学校区 | 東原中学校 (東京都杉並区) この学区の他の物件を見る |
|---|
| 価格 | 万円 | ||
|---|---|---|---|
| 年利率 | % |
||
| ボーナス払い | 返済年数 | ||
| 頭金 | 直接入力する | 万円 | |

毎月のご返済額 |
ボーナス(×年2回) |
物件価格9,490万円 |
閑静な住宅街に注文住宅を思わせる住宅が登場♪ 毎日の開閉も楽々な全居室電動シャッター付き シューズインクローゼットやウォークインクローゼットなど 収納力が豊富なので居住スペースを広く活用できます