三鷹市下連雀4丁目戸建 東京都三鷹市下連雀4丁目|16,500万円の中古一戸建て|株式会社東洋リーベスト
| 価格 | 16,500万円 ![]() |
||||
|---|---|---|---|---|---|
| 所在地 | 東京都三鷹市下連雀4丁目
この地域周辺の物件を見る |
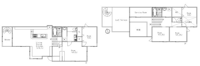
土地面積 | 146.18m² (44.21坪) | 建物面積 | 139.09u |
| 築年月 | 2010年4月築 | 間取り | 5SLDK (-) | ||
| 交通 |
JR中央本線 三鷹 徒歩10分
JR中央本線 吉祥寺 徒歩25分 |
||||
| 特徴 |
|
|---|---|
| セールスコメント | 〜〜〜スタッフの口コミ〜〜〜 目の前が公園なので、お子様やペットと遊ぶ際にすぐに行けるのが魅力的です! 室内は、吹き抜けがありおしゃれな印象です。 各部屋もしっかりと広さがあります! 〜〜〜ここに注目!〜〜〜 ・新規リフォーム物件 ・公園目の前 ・全居室収納あり ・おしゃれな室内 ・吹き抜け ・カウンターシステムキッチン ・三鷹駅徒歩10分 ・19.1帖の広々LDK ・小学校徒歩10分 ・日当たり良好 |
| 採光面 | 西 | 構造/階数 | 木造/地上2階建 |
|---|---|---|---|
| 建ぺい率 | 60(%) | 容積率 | 200(%) |
| 駐車場 | - | 現況/引渡し | 空家/相談 |
| 土地権利 | 所有権 | 私道負担面積 | - |
| 接道状況 | 接道: 西 公道 道路幅: 5m | 用途地域 |
第一種住居地域
|
| セットバック | - | 法令上の制限 | - |
| 地目 | 宅地 | 地勢 | |
| 建築確認番号 | 都市計画 | 市街化区域 | |
| 取引態様 | 仲介 | ||
| 情報更新日 | 2026年02月13日 | 次回更新日 | 2026年02月27日 |
| 小学校区 | 三鷹市立第四小学校 (東京都三鷹市) この学区の他の物件を見る |
中学校区 | 第一中学校 (東京都三鷹市) この学区の他の物件を見る |
|---|
| 価格 | 万円 | ||
|---|---|---|---|
| 年利率 | % |
||
| ボーナス払い | 返済年数 | ||
| 頭金 | 直接入力する | 万円 | |

毎月のご返済額 |
ボーナス(×年2回) |
物件価格16,500万円 |
目の前が公園なので、お子様やペットと遊ぶ際にすぐに行けるのが魅力的です! 室内は、吹き抜けがありおしゃれな印象です。 各部屋もしっかりと広さがあります!