国分寺市東元町1丁目新築戸建て 東京都国分寺市東元町1丁目|6,980万円の新築一戸建て|株式会社東洋リーベスト
| 価格 | 6,980万円 ![]() |
||||
|---|---|---|---|---|---|
| 所在地 | 東京都国分寺市東元町1丁目
この地域周辺の物件を見る |
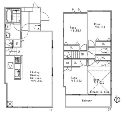
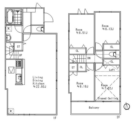
土地面積 | 117.46m² (35.53坪) | 建物面積 | 105.52u |
| 築年月 | 2026年3月築 | 間取り | 4LDK (-) | ||
| 交通 |
JR中央本線 国分寺 徒歩11分
京王線 府中 バス16分 一里塚 停歩8分 |
||||
| 特徴 |
|
|---|---|
| セールスコメント | 〜〜〜スタッフの口コミ〜〜〜 「国分寺」駅まで徒歩11分の利便性の高い立地! 建物面積100m2以上でゆとりのある生活を送ることが出来ます。 全居室6帖以上でどのお部屋も快適! 完成施工例も一緒に見て頂くことでイメージがしやすいです 〜〜〜ここに注目!〜〜〜 ・1棟のみ建物完成施工例ご見学可能! ※完全予約制となっております ・パントリーがあるキッチン ・22帖以上の広々LDK ・全居室収納付きの4LDK ・人造大理石カウンターシステムキッチン ・浴室乾燥機付1坪ユニットバス ・人造大理石シャンプードレッサー付洗面化粧台 ・断熱性能の高いLow-E複層ガラス採用 |
| 採光面 | 南 | 構造/階数 | 木造/地上2階建 |
|---|---|---|---|
| 建ぺい率 | 50(%) | 容積率 | 100(%) |
| 駐車場 | - | 現況/引渡し | -/相談 |
| 土地権利 | 所有権 | 私道負担面積 | - |
| 接道状況 | 接道: 東 2.2m 道路幅: 4.5m | 用途地域 |
第一種低層住居専用地域
|
| セットバック | - | 法令上の制限 | - |
| 地目 | - | 地勢 | |
| 建築確認番号 | 第25UDI1S健03528号 | 都市計画 | 市街化区域 |
| 取引態様 | 仲介 | ||
| 情報更新日 | 2026年01月23日 | 次回更新日 | 2026年02月06日 |
| 小学校区 | 国分寺市立第一小学校 (東京都国分寺市) この学区の他の物件を見る |
中学校区 | 第二中学校 (東京都国分寺市) この学区の他の物件を見る |
|---|
| 価格 | 万円 | ||
|---|---|---|---|
| 年利率 | % |
||
| ボーナス払い | 返済年数 | ||
| 頭金 | 直接入力する | 万円 | |

毎月のご返済額 |
ボーナス(×年2回) |
物件価格6,980万円 |
「国分寺」駅まで徒歩11分の利便性の高い立地! 建物面積100m2以上でゆとりのある生活を送ることが出来ます。 全居室6帖以上でどのお部屋も快適! 完成施工例も見て頂くことでイメージがしやすいです