調布市布田5丁目新築戸建て 東京都調布市布田5丁目|6,180万円の新築一戸建て|株式会社東洋リーベスト
| 価格 | 6,180万円 ![]() |
||||
|---|---|---|---|---|---|
| 所在地 | 東京都調布市布田5丁目
この地域周辺の物件を見る |
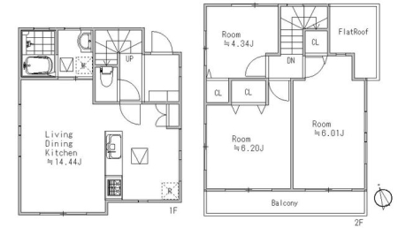
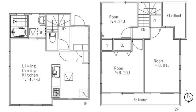
土地面積 | 86.39m² (26.13坪) | 建物面積 | 69.13u |
| 築年月 | 2026年3月築 | 間取り | 3LDK (-) | ||
| 交通 |
京王線 調布 徒歩14分
京王相模原線 京王多摩川 徒歩10分 |
||||
| 特徴 |
|
|---|---|
| セールスコメント | 〜〜〜スタッフの口コミ〜〜〜 南東角地のため日当たり良好です! 調布駅徒歩14分、京王多摩川駅徒歩10分と2駅利用できるのもうれしいポイントですね♪ 完成が楽しみな物件!完成前のご内覧も出来ますのでお早めにご予約下さい♪ 〜〜〜ここに注目!〜〜〜 ・建物完成施工例ご見学可能! ・LDK14.44帖 ・主寝室6.2帖 ・全居室収納付き ・ワイドバルコニー ・システムキッチン ・南東角地 ・2駅利用可 ・駅徒歩15分圏内 ・小学校徒歩3分 |
| 採光面 | - | 構造/階数 | 木造/地上2階建 |
|---|---|---|---|
| 建ぺい率 | 40(%) | 容積率 | 80(%) |
| 駐車場 | - | 現況/引渡し | -/相談 |
| 土地権利 | 所有権 | 私道負担面積 | - |
| 接道状況 | 接道: 南西 公道 道路幅: 6m 接道: 東南 道路幅: 5m |
用途地域 |
第一種低層住居専用地域
|
| セットバック | - | 法令上の制限 | - |
| 地目 | 宅地 | 地勢 | |
| 建築確認番号 | 第KBI-YKH25-10-1752号 | 都市計画 | 市街化区域 |
| 取引態様 | 仲介 | ||
| 情報更新日 | 2026年01月23日 | 次回更新日 | 2026年02月06日 |
| 小学校区 | 調布市立布田小学校 (東京都調布市) この学区の他の物件を見る |
中学校区 | 第三中学校 (東京都調布市) この学区の他の物件を見る |
|---|
| 価格 | 万円 | ||
|---|---|---|---|
| 年利率 | % |
||
| ボーナス払い | 返済年数 | ||
| 頭金 | 直接入力する | 万円 | |

毎月のご返済額 |
ボーナス(×年2回) |
物件価格6,180万円 |
南東角地のため日当たり良好です! 調布駅徒歩14分、京王多摩川駅徒歩10分と2駅利用できるのもうれしいポイントですね♪ 完成が楽しみな物件!完成前のご内覧も出来ますのでお早めにご予約下さい♪