学園東町1丁目 新築戸建 東京都小平市学園東町1丁目|5,090万円の新築一戸建て|株式会社東洋リーベスト
| 価格 | 5,090万円値下がり ![]() |
||||
|---|---|---|---|---|---|
| 所在地 | 東京都小平市学園東町1丁目
この地域周辺の物件を見る |
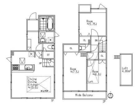
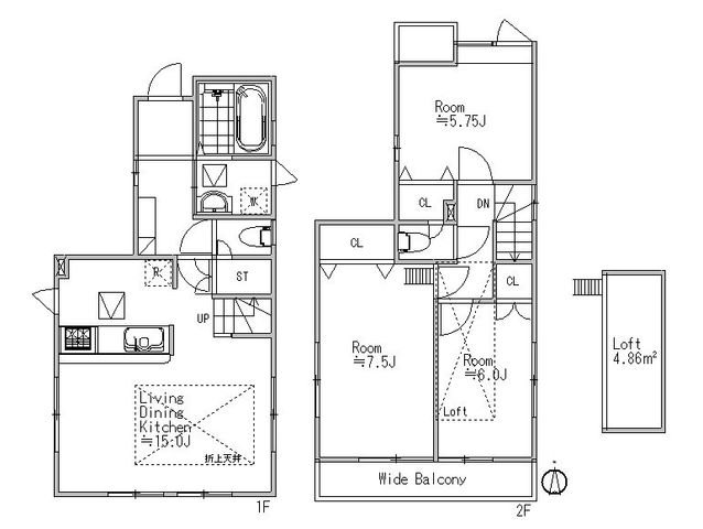
土地面積 | 98.01m² (29.64坪) | 建物面積 | 77.76u |
| 築年月 | 2025年12月築 | 間取り | 3LDK (-) | ||
| 交通 |
西武多摩湖線 一橋学園 徒歩7分
JR中央本線 国分寺 バス15分 一橋学園駅 停歩6分 |
||||
| 特徴 |
|
|---|---|
| セールスコメント | 〜〜〜スタッフの口コミ〜〜〜 南側のお庭が広く隣地との距離がしっかりと取れており日当たり風通しが良好です。ウッドデッキを造ってオープンエアリビングのような使い方もできます。追加工事のご相談も承っておりますのでお気軽にご相談ください 〜〜〜ここに注目!〜〜〜 ・建物完成施工例ご見学可能! ・全居室収納付き ・浴室乾燥機付1坪ユニットバス ・耐震等級3(最高等級)取得 ・省エネ住宅 ・太陽光発電設置 ・折上天井で開放感とデザイン性の両立 ・広々としたお庭付 〜〜〜スタッフの口コミ〜〜〜 南側のお庭が広く隣地との距離がしっかりと取れており日当たり風通しが良好です。ウッドデッキを造ってオープンエアリビングのような使い方もできます。追加工事のご相談も承っておりますのでお気軽にご相談ください 〜〜〜ここに注目!〜〜〜 ・建物完成施工例ご見学可能! ・全居室収納付き ・浴室乾燥機付1坪ユニットバス ・耐震等級3(最高等級)取得 ・省エネ住宅 ・太陽光発電設置 ・折上天井で開放感とデザイン性の両立 ・広々としたお庭付 |
| 採光面 | 南 | 構造/階数 | 木造/地上2階建 |
|---|---|---|---|
| 建ぺい率 | 40(%) | 容積率 | 80(%) |
| 駐車場 | 有 | 現況/引渡し | 空家/相談 |
| 土地権利 | 所有権 | 私道負担面積 | - |
| 接道状況 | 接道: 北 公道 道路幅: 4m | 用途地域 |
第一種低層住居専用地域
|
| セットバック | - | 法令上の制限 | - |
| 地目 | 宅地 | 地勢 | |
| 建築確認番号 | 都市計画 | 市街化区域 | |
| 取引態様 | 仲介 | ||
| 情報更新日 | 2026年01月23日 | 次回更新日 | 2026年02月06日 |
| 小学校区 | 小平市立学園東小学校 (東京都小平市) この学区の他の物件を見る |
中学校区 | 小平第一中学校 (東京都小平市) この学区の他の物件を見る |
|---|
| 価格 | 万円 | ||
|---|---|---|---|
| 年利率 | % |
||
| ボーナス払い | 返済年数 | ||
| 頭金 | 直接入力する | 万円 | |

毎月のご返済額 |
ボーナス(×年2回) |
物件価格5,090万円 |
南側のお庭が広く隣地との距離がしっかりと取れており日当たり風通しが良好です。ウッドデッキを造ってオープンエアリビングのような使い方もできます。追加工事のご相談も承っておりますのでお気軽にご相談ください