西大泉一丁目 中古戸建 東京都練馬区西大泉1丁目|6,790万円の中古一戸建て|株式会社東洋リーベスト
| 価格 | 6,790万円 ![]() |
||||
|---|---|---|---|---|---|
| 所在地 | 東京都練馬区西大泉1丁目
この地域周辺の物件を見る |
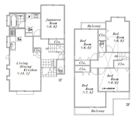
土地面積 | 108.74m² (32.89坪) | 建物面積 | 108.74u |
| 築年月 | 2004年8月築 | 間取り | 5LDK (-) | ||
| 交通 |
西武池袋線 保谷 徒歩16分
西武池袋線 大泉学園 徒歩19分 |
||||
| 特徴 |
|
|---|---|
| セールスコメント |
| 採光面 | 南西 | 構造/階数 | 木造/地上2階建 |
|---|---|---|---|
| 建ぺい率 | 50(%) | 容積率 | 100(%) |
| 駐車場 | 有 | 現況/引渡し | 空家/相談 |
| 土地権利 | 所有権 | 私道負担面積 | - |
| 接道状況 | 接道: 南西 7.6m 公道 道路幅: 5.5m 接道: 北東 7.8m 公道 道路幅: 3.6m |
用途地域 |
第一種低層住居専用地域
|
| セットバック | - | 法令上の制限 | - |
| 地目 | 宅地 | 地勢 | |
| 建築確認番号 | 都市計画 | 市街化区域 | |
| 取引態様 | 仲介 | ||
| 情報更新日 | 2025年12月09日 | 次回更新日 | 2025年12月23日 |
| 小学校区 | 練馬区立大泉第四小学校 (東京都練馬区) この学区の他の物件を見る |
中学校区 | 大泉中学校 (東京都練馬区) この学区の他の物件を見る |
|---|
| 価格 | 万円 | ||
|---|---|---|---|
| 年利率 | % |
||
| ボーナス払い | 返済年数 | ||
| 頭金 | 直接入力する | 万円 | |

毎月のご返済額 |
ボーナス(×年2回) |
物件価格6,790万円 |