杉並区荻窪1丁目新築戸建て 東京都杉並区荻窪1丁目|6,780万円の新築一戸建て|株式会社東洋リーベスト
| 価格 | 6,780万円値下がり ![]() |
||||
|---|---|---|---|---|---|
| 所在地 | 東京都杉並区荻窪1丁目
この地域周辺の物件を見る |
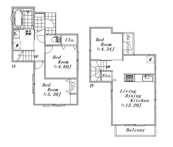
土地面積 | 79.79m² (24.13坪) | 建物面積 | 62.92u |
| 築年月 | 2026年2月築 | 間取り | 2SLDK (-) | ||
| 交通 |
東京メトロ丸ノ内線 南阿佐ケ谷 徒歩19分
JR中央本線 荻窪 徒歩20分 |
||||
| 特徴 |
|
|---|---|
| セールスコメント | 〜〜〜スタッフの口コミ〜〜〜 西側が抜けているので開放感があり、気持ちよくお住まいになって頂ける物件です。 近くには善福寺緑地があり身近に緑を感じながら生活ができます。 また小中学校まで徒歩6分なのも魅力的です。 〜〜〜ここに注目!〜〜〜 ・建物完成済み ・小中学校まで徒歩6分 ・エコジョーズ ・地盤保証20年 ・シロアリ保証5年 ・抜け感◎ |
| 採光面 | - | 構造/階数 | 木造/地上2階建 |
|---|---|---|---|
| 建ぺい率 | 40(%) | 容積率 | 80(%) |
| 駐車場 | - | 現況/引渡し | 空家/相談 |
| 土地権利 | 所有権 | 私道負担面積 | - |
| 接道状況 | 接道: 北 道路幅: 4m | 用途地域 |
第一種低層住居専用地域
|
| セットバック | - | 法令上の制限 | - |
| 地目 | - | 地勢 | |
| 建築確認番号 | 都市計画 | 市街化区域 | |
| 取引態様 | 仲介 | ||
| 情報更新日 | 2026年04月20日 | 次回更新日 | 2026年05月04日 |
| 小学校区 | 杉並区立西田小学校 (東京都杉並区) この学区の他の物件を見る |
中学校区 | 松溪中学校 (東京都杉並区) この学区の他の物件を見る |
|---|
| 価格 | 万円 | ||
|---|---|---|---|
| 年利率 | % |
||
| ボーナス払い | 返済年数 | ||
| 頭金 | 直接入力する | 万円 | |

毎月のご返済額 |
ボーナス(×年2回) |
物件価格6,780万円 |
西側が抜けているので開放感があり、気持ちよくお住まいになって頂ける物件です。 近くには善福寺緑地があり身近に緑を感じながら生活ができます。 また小中学校まで徒歩6分なのも魅力的です。