天沼1丁目土地 限定1区画 東京都杉並区天沼1丁目|8,580万円の土地|株式会社東洋リーベスト
| 価格 | 8,580万円 ![]() |
||||
|---|---|---|---|---|---|
| 所在地 | 東京都杉並区天沼1丁目
この地域周辺の物件を見る |
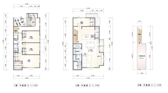
土地面積 | 120.91m² (36.57坪) | 坪単価 | 234.58万円 /坪 |
| 交通 |
JR中央本線 荻窪 徒歩13分
JR中央本線 阿佐ケ谷 徒歩13分 |
建ぺい率 | 60 % | 容積率 | 150 % |
| 特徴 |
|
|---|---|
| セールスコメント |
| 建築条件 | - | 土地権利 | 所有権 |
|---|---|---|---|
| 現況/引渡し | 古屋あり/相談 | 接道状況 | 接道: 北 公道 道路幅: 5.9m |
| 私道負担面積 | - | セットバック | - |
| 地勢 | 平坦 | 地目 | 宅地 |
| 用途地域 | 第一種低層住居専用地域 | 都市計画 | 市街化区域 |
| 法令上の制限 | - | 国土法届出 | - |
| 取引態様 | 専任媒介 | ||
| 情報更新日 | 2026年01月23日 | 次回更新日 | 2026年02月06日 |
| 小学校区 | 杉並区立天沼小学校 (東京都杉並区) この学区の他の物件を見る |
中学校区 | 天沼中学校 (東京都杉並区) この学区の他の物件を見る |
|---|
| 価格 | 万円 | ||
|---|---|---|---|
| 年利率 | % |
||
| ボーナス払い | 返済年数 | ||
| 頭金 | 直接入力する | 万円 | |

毎月のご返済額 |
ボーナス(×年2回) |
物件価格8,580万円 |